



$247,345
1237 Cleve Gosnell Lane
Spartanburg, SC 29303
About This Property
This Property Has Been Sold
This property sold 6 months ago and is no longer available for purchase.
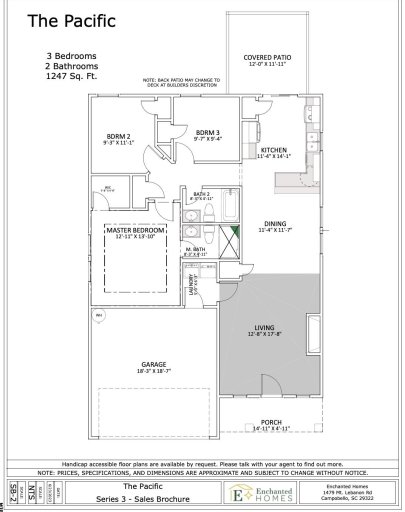
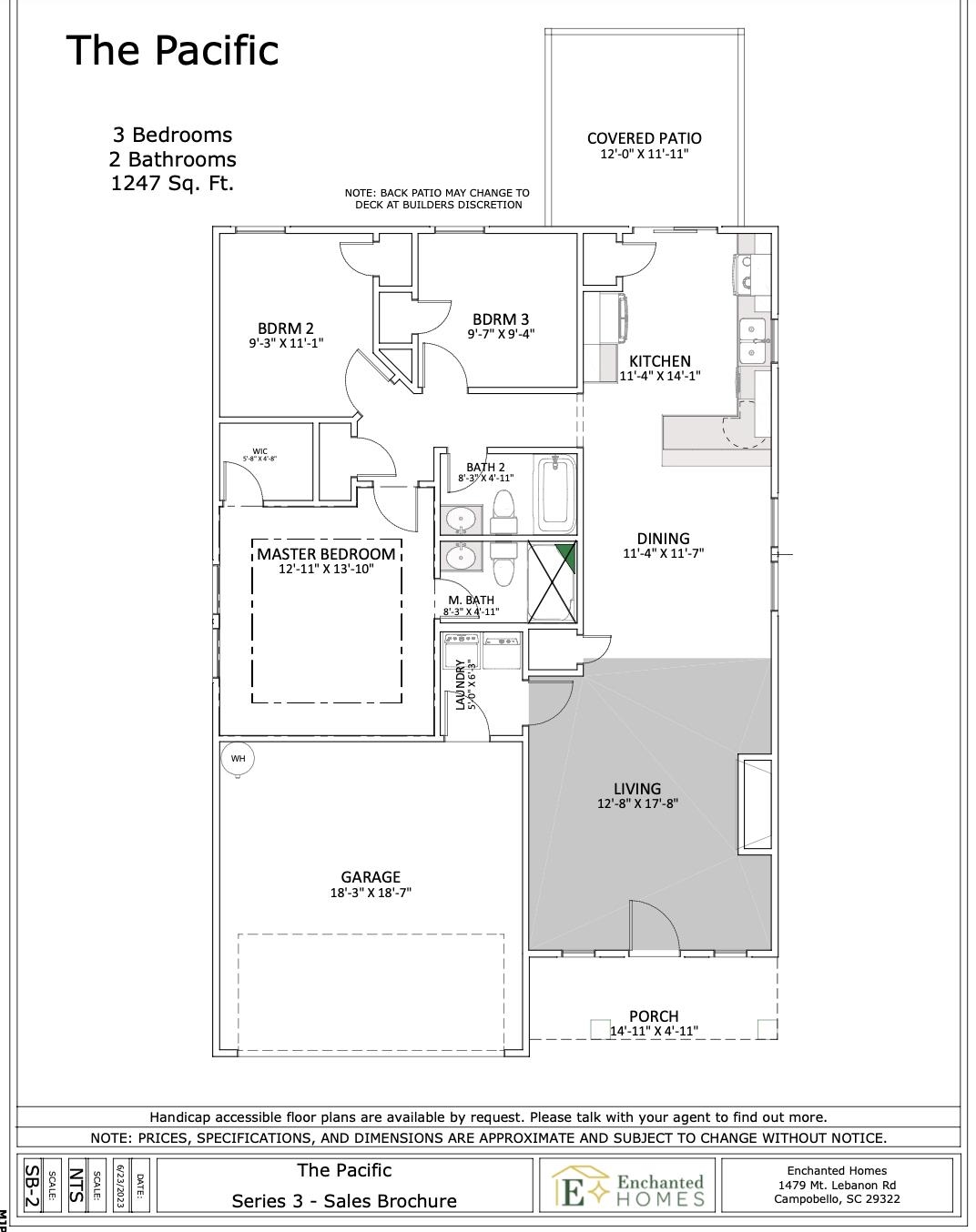
View active listings in Cleveland Meadow →The PACIFIC (Lot 54) offers a modern, open concept living area perfect for entertaining. 3 bedroom, 2 bath. Complete with the trademark chair rail, crown molding, and rope lighting.
12' x 12' covered back patio. 30-year architectural shingles, site-built construction, and a 10 year limited warranty are included to give you peace of mind. Preferred Lender/Attorney Closing Costs Incentive Offered!
Home is currently in slab stage and most color selections are still available for buyer. Home can be completed 3 months from contract. *Virtual tour reflects same house plan, not exact house.
SPN MLS # 324369
Quick Facts
Time on Site
11 months ago
Property Type
Residential
Year Built
2025
Lot Size
5,227 sqft
Price/Sq.Ft.
$198
Property Details
Schools
Features & Amenities
Features:
- Ceiling Fan(s)
- Ceilings-Some 9 Ft +
- Tray Ceiling(s)
- Attic Stairs Pulldown
- Fireplace
- Walk-In Closet(s)
- Solid Surface Counters
Location & Map
Map View
Loading map...
Additional Information
Basement
Community
- Common Areas
- Street Lights
Lot & Land
- Level
Primary Suite
- Bath - Full
- Owner on Main Level
- Shower Only
- Walk-in Closet
Interior Details
- Carpet
- Luxury Vinyl
- Cooktop
- Dishwasher
- Disposal
- Microwave
- Electric Oven
- Walk-In
- Ceiling Fan(s)
- Ceilings-Some 9 Ft +
- Tray Ceiling(s)
- Attic Stairs Pulldown
- Fireplace
- Walk-In Closet(s)
- Solid Surface Counters
- Gas Log
New Construction
Parking & Garage
- 2 Car Attached
Exterior Features
- Architectural
- Slab
- Stone
- Vinyl Siding
- Patio
- Porch
- Covered Patio
H O A & Association
- Common Area
- Street Lights
Property Overview
- One
- Craftsman
- Ranch
Utilities & Systems
- Public Sewer
- Heat Pump
- Heat Pump
- Public
Listing Agent Information
You Might Also Like...
Interested in selling in Cleveland Meadow?


