




$288,703
1232 Cleve Gosnell Lane
About This Property
This Property Has Been Sold
This property sold 5 months ago and is no longer available for purchase.
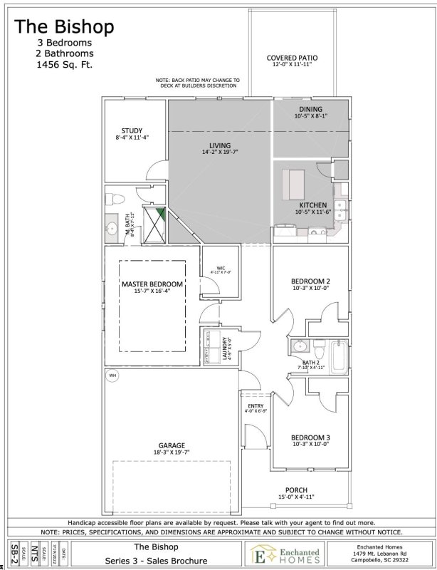
View active listings in Cleveland Meadow →The BISHOP plan (Lot 33) has a spacious open living area and study. Granite countertops, crown molding with rope lighting, and many more features included. Master bath upgrade to include double vanity and garden tub in addition to walk-in shower.
12' X 12' Sunroom and additional 12' x 12' covered patio overlooks the private yard. Craftsman siding upgrade package. Upgraded cabinets.
Luxury Vinyl Plank throughout home. 1/2 stone fireplace. 30-year architectural shingles, site-built construction, and a 10 year limited warranty are included to give you peace of mind.
Quick Facts
Time on Site
10 months ago
Property Type
Residential
Year Built
2025
Lot Size
5,227 sqft
Price/Sq.Ft.
$180
Property Details
Schools
Features & Amenities
Location & Map
Map View
Loading map...
Additional Information
Basement
Community
- Common Areas
- Street Lights
- Pool
Lot & Land
- Level
Primary Suite
- Double Vanity
- Bath - Full
- Shower-Separate
- Tub-Garden
- Walk-in Closet
- Owner on Main Level
Interior Details
- Carpet
- Luxury Vinyl
- Dishwasher
- Disposal
- Microwave
- Cooktop
- Electric Oven
- Walk-In
- Ceiling Fan(s)
- High Ceilings
- Tray Ceiling(s)
- Attic Stairs Pulldown
- Fireplace
- Walk-In Closet(s)
- Solid Surface Counters
- Open Floorplan
- Gas Log
New Construction
Parking & Garage
- 2 Car Attached
Exterior Features
- Architectural
- Slab
- Stone
- Vinyl Siding
- Patio
- Porch
- Covered
H O A & Association
- Common Area
- Street Lights
Property Overview
- One
- Ranch
- Craftsman
Utilities & Systems
- Public Sewer
- Heat Pump
- Heat Pump
- Public
