


$284,900
117 Milo Road
Spartanburg, SC 29301
About This Property
This Property Has Been Sold
This property sold 2 months ago and is no longer available for purchase.
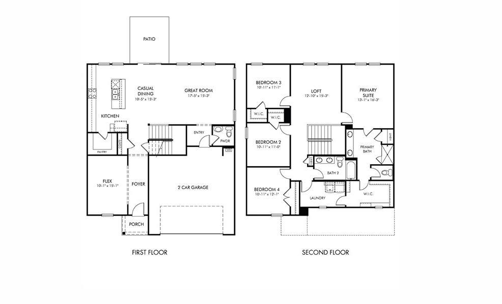
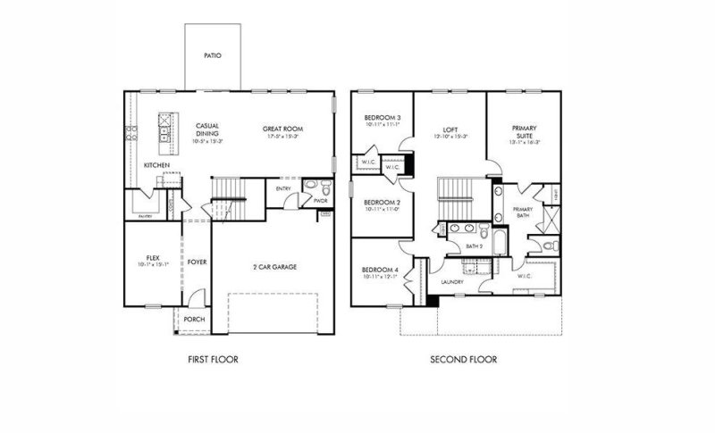
View active listings in Holland Park →Brand new, energy-efficient home available by Nov 2025! Outfit the Dakota's main-level flex space as a home office and skip your commute. In the kitchen, the island overlooks the open living space.
Barnett Harbor cabinets and Save Woodlands Carmen EVP flooring come in our Classic White package. Small-town charm meets big-city amenities in this Spartanburg community. Situated just four miles from downtown Spartanburg and in the highly desirable Spartanburg High School District, Holland Park offers functional floorplans with included features like outdoor patios and designer-curated interior packages.
Residents in Holland Park can look forward to enjoying community amenities like the pool and cabana, playground, fire pit, and more.
SPN MLS # 330670
Quick Facts
Time on Site
4 months ago
Property Type
Residential
Year Built
2026
Lot Size
8,276 sqft
Price/Sq.Ft.
$115
Property Details
Schools
Features & Amenities
Location & Map
Map View
Loading map...
Additional Information
Basement
Community
- Common Areas
- Street Lights
- Playground
- Pool
Lot & Land
- Some Trees
- Wooded
Primary Suite
- Bath - Full
- Shower Only
- Walk-in Closet
Interior Details
- Carpet
- Ceramic Tile
- Wood
- Gas Cooktop
- Dishwasher
- Disposal
- Microwave
- Bonus
- Breakfast Area
- Comb. Living & Din Room
- Loft
- Office/Study
- Insulated Windows
- Tilt-Out
- Attic Stairs Pulldown
- Ceiling - Smooth
- Solid Surface Counters
- Open Floorplan
New Construction
Parking & Garage
Exterior Features
- Composition
- Attic
- Garage
- Slab
- Brick Veneer
- Stone
- Vinyl Siding
- Patio
H O A & Association
- Common Area
- Pool
- Street Lights
Property Overview
- Two
- Contemporary
- Craftsman
Utilities & Systems
- Public Sewer
- Central Air
- Heat Pump
- Available
Listing Agent Information
You Might Also Like...
Interested in selling in Holland Park?


