




$334,100
617 River Trace Loop
Simpsonville, SC 29680
About This Property
This Property Has Been Sold
This property sold 9 months ago and is no longer available for purchase.
View active listings in River Trace →Stimulus Package (Call for Details). Atwood Model Available in River Trace! 3 Bedroom - 2.
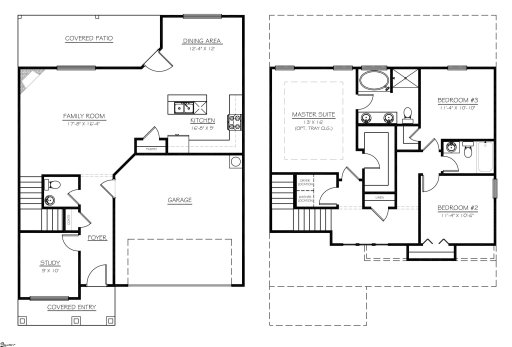
5 Bath - Approx. 1828 SF. Slab Foundation - Smart Home Manager Package- 2-Car Garage w/ Opener & 2 Remotes - Covered Concrete Patio - Architectural Shingles - Window Blinds - 9-Foot Ceilings on Main Level - Tray Ceiling in Primary Bedroom - Ceiling Fans in Family Room & Primary Bedroom - Raised Hearth, Gas Log Fireplace w/ Stone to Mantel - Luxury Vinyl Plank Flooring in Main Living Areas.
Kitchen Features: 42” Cabinetry, Granite Countertop & Stainless Steel Appliance Package w/ Refrigerator. Cultured Marble Vanities in All Full Baths - Double Sinks, Garden Tub & Separate Shower in Primary Bath.
GVL MLS # 1551943
Quick Facts
Time on Site
1 year ago
Property Type
Residential
Lot Size
6,534 sqft
Price/Sq.Ft.
$183
HOA Fees
$375/yr
Property Details
Schools
Features & Amenities
Features:
- High Ceilings
- Ceiling Fan(s)
- Ceiling Smooth
- Tray Ceiling(s)
- Granite Counters
- Countertops-Solid Surface
- Open Floorplan
- Soaking Tub
- Walk-In Closet(s)
- Pantry
Location & Map
Map View
Loading map...
Additional Information
Community
- Common Areas
- Street Lights
- Sidewalks
Lot & Land
- 1/2 Acre or Less
- Sprklr In Grnd-Partial Yd
Tax Information
Interior Details
- Carpet
- Vinyl
- Luxury Vinyl
- Dishwasher
- Disposal
- Self Cleaning Oven
- Refrigerator
- Electric Oven
- Free-Standing Electric Range
- Microwave
- Gas Water Heater
- 2nd Floor
- Walk-in
- High Ceilings
- Ceiling Fan(s)
- Ceiling Smooth
- Tray Ceiling(s)
- Granite Counters
- Countertops-Solid Surface
- Open Floorplan
- Soaking Tub
- Walk-In Closet(s)
- Pantry
- Gas Log
- Ventless
Parking & Garage
- Attached
- Paved
- Garage Door Opener
Exterior Features
- Architectural
- Attached
- Paved
- Garage Door Opener
- Slab
- Patio
- Front Porch
- Rear Porch
- Vinyl Siding
H O A & Association
- Common Area Ins.
- Street Lights
Property Overview
- Two
- Traditional
Utilities & Systems
- Public Sewer
- Central Air
- Electric
- Forced Air
- Natural Gas
- Underground Utilities
- Public
Listing Agent Information
The information is being provided by Greater Greenville MLS. Information deemed reliable but not guaranteed. Information is provided for consumers' personal, non-commercial use, and may not be used for any purpose other than the identification of potential properties for purchase. Copyright 2025 Greater Greenville MLS. All Rights Reserved.
You Might Also Like...
Interested in selling in River Trace?

