


$979,500
6 Godfrey Grove Drive
About This Property
This Property Has Been Sold
This property sold 4 years ago and is no longer available for purchase.
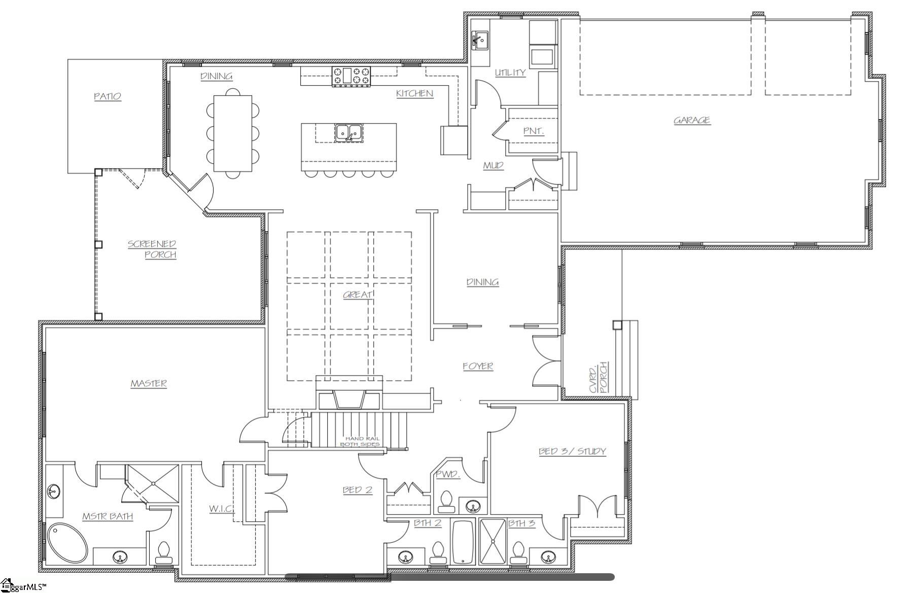
View active listings in Godfrey Ridge →Currently under construction, this is one of the last remaining opportunities in sought-after gated Godfrey Ridge subdivision in the popular Five Forks area. Less than one mile to numerous shopping, restaurants, and entertainment options. Beautiful all brick, one and a half story home with open floor plan, great for entertaining.
Side entry 3 car garage enters to mud room/drop zone area beside utility room. This leads to a lavish gourmet kitchen with custom cabinetry, commercial style stainless appliances, and a large island with seating. The kitchen and spacious breakfast room open to great room, screened porch, and patio areas.
Dining room is built to be as such, or as an optional office with doors to privatize if desired. Hardwood floors throughout main level. Three bedrooms on main level, each with their own private bath, and an additional half bath for guests.
GVL MLS # 1466563
Quick Facts
Time on Site
4 years ago
Property Type
Residential
Year Built
2022
Lot Size
13,503 sqft
Property Details
Schools
Features & Amenities
Location & Map
Map View
Loading map...
Additional Information
Agent Contacts
- Greenville: (864) 757-4000
- Simpsonville: (864) 881-2800
Community & H O A
Room Dimensions
Property Details
- Architectural
- Metal
- Traditional
- European
- Level
- Underground Utilities
Exterior Features
- Circular
- Paved
- Hardboard Siding
- Brick Veneer-Full
- Patio
- Porch-Screened
- Tilt Out Windows
- Vinyl/Aluminum Trim
- Windows-Insulated
- Sprklr In Grnd-Full Yard
Interior Features
- Sink
- 1st Floor
- Dryer – Electric Hookup
- Carpet
- Ceramic Tile
- Wood
- Cook Top-Gas
- Dishwasher
- Disposal
- Stand Alone Range-Gas
- Refrigerator
- Double Oven
- Laundry
- Office/Study
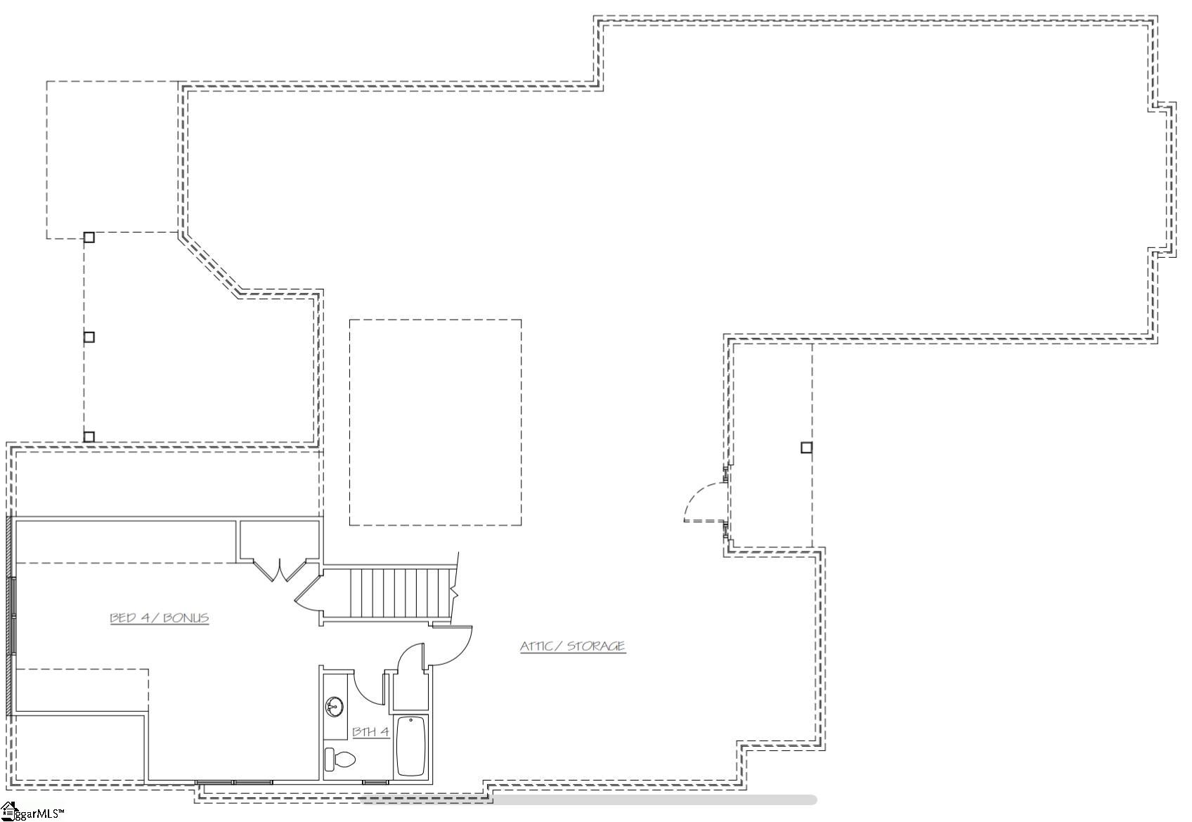
- Bonus Room/Rec Room
- Cable Available
- Ceiling 9ft+
- Ceiling Fan
- Ceiling Smooth
- Ceiling Trey
- Countertops Granite
- Countertops-Solid Surface
- Open Floor Plan
- Sec. System-Owned/Conveys
- Smoke Detector
- Tub Garden
- Walk In Closet
- Ceiling – Coffered
- Pantry – Walk In
Systems & Utilities
- Gas
- Tankless
- Central Forced
- Electric
- Multi-Units
- Forced Air
- Multi-Units
- Natural Gas
Showing & Documentation
- House Plans
- Restric.Cov/By-Laws
- Advance Notice Required
- Appointment/Call Center
- Show Anytime
- Lockbox-Combination
The information is being provided by Greater Greenville MLS. Information deemed reliable but not guaranteed. Information is provided for consumers' personal, non-commercial use, and may not be used for any purpose other than the identification of potential properties for purchase. Copyright 2025 Greater Greenville MLS. All Rights Reserved.
You Might Also Like...
Interested in selling in Godfrey Ridge?


