




$409,990
217 Moorish Circle
Simpsonville, SC 29681
About This Property
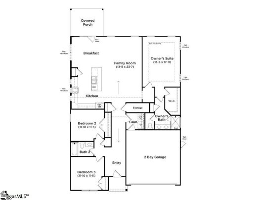
Welcome to Mulberry Estates! The only new single family community in Simpsonville with future access to the Swamp Rabbit Trail. The Cooper 3 floor plan is a versatile,ranch-style home offering comfortable living spaces with flexible design options.
As you enter into your spacious entry hall, you have two bedrooms and full bath adjacent to the foyer. The open kitchen features beautiful white cabinetry, granite countertops, tiled backsplash, under cabinet lighting, center island with dark cabinet accents and a farmhouse sink and upgraded stainless steel gas appliances. The breakfast room leads out to the covered back porch overlooking your backyard.
The Primary Suite is situated off the living room and features double vanities, generous walk in closet and tiled shower with seat and glass door. Up the Oak staircase you have an additional bedroom with full bath along with a large multi use room, great for extra living space or even a home office. This home also comes with standard irrigation included.
GVL MLS # 1583480
Quick Facts
Time on Site
1 month ago
Property Type
Residential
Year Built
2026
Lot Size
6,534 sqft
Price/Sq.Ft.
$173
HOA Fees
$500/yr
Property Details
Schools
Features & Amenities
Features:
- High Ceilings
- Ceiling Fan(s)
- Ceiling Smooth
- Granite Counters
- Open Floorplan
- Walk-In Closet(s)
- Split Floor Plan
- Pantry
Location & Map
Map View
Loading map...
Additional Information
Lot & Land
- 1/2 Acre or Less
Tax Information
Interior Details
- Carpet
- Luxury Vinyl
- Dishwasher
- Disposal
- Free-Standing Gas Range
- Self Cleaning Oven
- Gas Oven
- Microwave
- Gas Water Heater
- 1st Floor
- Electric Dryer Hookup
- High Ceilings
- Ceiling Fan(s)
- Ceiling Smooth
- Granite Counters
- Open Floorplan
- Walk-In Closet(s)
- Split Floor Plan
- Pantry
Parking & Garage
- Attached
- Paved
- Garage Door Opener
Exterior Features
- Architectural
- Attached
- Paved
- Garage Door Opener
- Slab
- Front Porch
- Rear Porch
- Hardboard Siding
- Under Ground Irrigation
H O A & Association
- Street Lights
Property Overview
- Two
- Craftsman
Utilities & Systems
- Public Sewer
- Electric
- Natural Gas
- Cable Available
- Public
Listing Agent Information
The information is being provided by Greater Greenville MLS. Information deemed reliable but not guaranteed. Information is provided for consumers' personal, non-commercial use, and may not be used for any purpose other than the identification of potential properties for purchase. Copyright 2025 Greater Greenville MLS. All Rights Reserved.


