


$519,308
136 Winding Stream Circle Lot 11 Treyburn Farmhouse
Simpsonville, SC 29681
About This Property
Tucked within a serene setting in desirable Five Forks, Woodcrest Hills has your ideal home in an idyllic location. Here you will find a selection of beautiful new home designs which allow the opportunity to personalize at the Toll Brothers Design Studio with sophisticated fixtures and finishes. Served by desirable Greenville schools, this relaxed and refined enclave has a nestled-in-nature feel with open space at the back of the community and several options for wooded home sites.
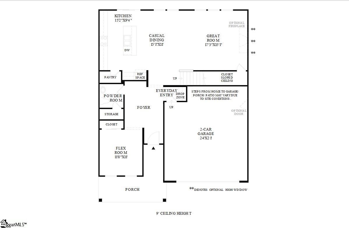
The lovely Treyburn begins with an inviting foyer that opens to a versatile flex room and the charming casual dining area and spacious great room. Adjacent, the well-equipped kitchen with access to the rear yard and features a center island with breakfast bar, a pantry, and plenty of cabinet and counter space. The airy primary bedroom boasts a generous walk-in closet and a serene primary bath with dual vanities, a luxe shower, linen storage, and a private water closet.
Central to a versatile loft are three secondary bedrooms—two with walk-in closets—that share a full hall bath. Additional highlights include an everyday entry with drop zone, a convenient powder room, bedroom-level laundry, and ample storage.
GVL MLS # 1571284
Quick Facts
Time on Site
6 months ago
Property Type
Residential
Lot Size
6,098 sqft
Price/Sq.Ft.
$183
HOA Fees
$900/yr
Property Details
Schools
Features & Amenities
Features:
- Ceiling Smooth
- Granite Counters
- Open Floorplan
- Walk-In Closet(s)
- Countertops – Quartz
- Radon System
Location & Map
Address
136 Winding Stream Circle Lot 11 Treyburn Farmhouse, Simpsonville, SC 29681
Community
Woodcrest Hills
Map View
Loading map...
Additional Information
Community
- Common Areas
- Street Lights
- Sidewalks
Lot & Land
- 1/2 Acre or Less
Tax Information
Interior Details
- Ceramic Tile
- Laminate
- Dishwasher
- Disposal
- Electric Cooktop
- Electric Oven
- Microwave
- Gas Water Heater
- Tankless Water Heater
- Electric Dryer Hookup
- Washer Hookup
- Laundry Room
- Ceiling Smooth
- Granite Counters
- Open Floorplan
- Walk-In Closet(s)
- Countertops – Quartz
- Radon System
Parking & Garage
- Attached
- Concrete
- Garage Door Opener
Exterior Features
- Architectural
- Attached
- Concrete
- Garage Door Opener
- Slab
- Patio
- Hardboard Siding
H O A & Association
Property Overview
- Two
- Traditional
Utilities & Systems
- Public Sewer
- Electric
- Natural Gas
- Underground Utilities
- Public
Listing Agent Information
The information is being provided by Greater Greenville MLS. Information deemed reliable but not guaranteed. Information is provided for consumers' personal, non-commercial use, and may not be used for any purpose other than the identification of potential properties for purchase. Copyright 2025 Greater Greenville MLS. All Rights Reserved.

