


$560,278
128 Winding Stream Circle Lot 15 Saltcreek Elite Transitional
Simpsonville, SC 29681
About This Property
This Property Has Been Sold
This property sold 2 months ago and is no longer available for purchase.
View active listings in Woodcrest Hills →Tucked within a serene setting in desirable Five Forks, Woodcrest Hills has your ideal home in an idyllic location. Here you will find a selection of beautiful new home designs which allow the opportunity to personalize at the Toll Brothers Design Studio with sophisticated fixtures and finishes. Served by desirable Greenville schools, this relaxed and refined enclave has a nestled-in-nature feel with open space at the back of the community and several options for wooded home sites.
Experience luxurious living with the Saltcreek Elite home design. An elongated foyer leads to an open-concept great room and casual dining area with access to a beautiful covered patio, perfect for entertaining. Adjacent, the thoughtfully designed kitchen features a spacious center island with breakfast bar, a walk-in pantry, and generous counter and cabinet space.
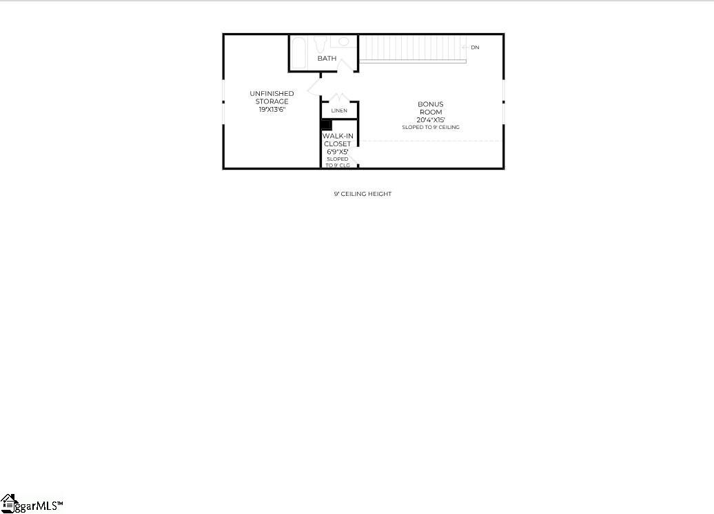
Retreat to the primary bedroom, complete with a large walk-in closet and a lovely primary bath with a dual-sink vanity, a luxe shower, linen storage, and a private water closet. Charming secondary bedrooms have walk-in closets and share a full bath. Upstairs is a spacious room, a full bath, and unfinished storage space.
GVL MLS # 1563832
Quick Facts
Time on Site
8 months ago
Property Type
Residential
Lot Size
7,840 sqft
Price/Sq.Ft.
$214
HOA Fees
$900/yr
Property Details
Schools
Features & Amenities
Features:
- Ceiling Smooth
- Granite Counters
- Open Floorplan
- Walk-In Closet(s)
- Countertops – Quartz
- Radon System
Location & Map
Address
128 Winding Stream Circle Lot 15 Saltcreek Elite Transitional, Simpsonville, SC 29681
Community
Woodcrest Hills
Map View
Loading map...
Additional Information
Community
- Common Areas
- Street Lights
- Sidewalks
Lot & Land
- 1/2 Acre or Less
Tax Information
Interior Details
- Ceramic Tile
- Laminate
- Dishwasher
- Disposal
- Electric Cooktop
- Electric Oven
- Microwave
- Gas Water Heater
- Tankless Water Heater
- 1st Floor
- Electric Dryer Hookup
- Washer Hookup
- Laundry Room
- Ceiling Smooth
- Granite Counters
- Open Floorplan
- Walk-In Closet(s)
- Countertops – Quartz
- Radon System
Parking & Garage
- Attached
- Concrete
- Garage Door Opener
Exterior Features
- Architectural
- Attached
- Concrete
- Garage Door Opener
- Slab
- Patio
- Hardboard Siding
H O A & Association
Property Overview
- Two
- Ranch
Utilities & Systems
- Public Sewer
- Electric
- Natural Gas
- Underground Utilities
- Public
Listing Agent Information
The information is being provided by Greater Greenville MLS. Information deemed reliable but not guaranteed. Information is provided for consumers' personal, non-commercial use, and may not be used for any purpose other than the identification of potential properties for purchase. Copyright 2025 Greater Greenville MLS. All Rights Reserved.
You Might Also Like...
Interested in selling in Woodcrest Hills?


