




$404,990
New Simpsonville Home: Spacious Living, Bonus Room & Trail Access
Simpsonville, SC 29681
About This Property
This Property Has Been Sold
This property sold 7 months ago and is no longer available for purchase.
View active listings in Mulberry Estates →New single-family homes in Simpsonville, SC! Welcome to Mulberry Estates. Centrally located between two of Greenville County's fastest growing cities.
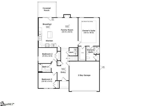
Premier craftsman style floorplans including first or second level primary suites, James Hardie ColorPlus siding, open concept living and designs for all lifestyles. Desirable future in-community access to the Swamp Rabbit Trail. Under 5 minutes from I-385 and Harrison Bridge Rd.
Surrounded by top-rated schools including the new Fountain Inn High School. Immerse yourself in entertainment options with the Heritage Park Amphitheater being just around the corner. Explore charming downtown Fountain Inn with the Farmer s Market, Shopping, and Dining only five minutes from your doorstep.
GVL MLS # 1559275
Quick Facts
Time on Site
11 months ago
Property Type
Residential
Year Built
2025
Lot Size
6,534 sqft
Price/Sq.Ft.
$224
HOA Fees
$500/yr
Property Details
Schools
Features & Amenities
Features:
- High Ceilings
- Ceiling Fan(s)
- Vaulted Ceiling(s)
- Ceiling Smooth
- Open Floorplan
- Walk-In Closet(s)
- Split Floor Plan
- Countertops – Quartz
- Pantry
Location & Map
Map View
Loading map...
Additional Information
Lot & Land
- 1/2 Acre or Less
Tax Information
Interior Details
- Carpet
- Luxury Vinyl
- Dishwasher
- Disposal
- Free-Standing Gas Range
- Self Cleaning Oven
- Gas Oven
- Microwave
- Gas Water Heater
- 1st Floor
- Electric Dryer Hookup
- High Ceilings
- Ceiling Fan(s)
- Vaulted Ceiling(s)
- Ceiling Smooth
- Open Floorplan
- Walk-In Closet(s)
- Split Floor Plan
- Countertops – Quartz
- Pantry
- Gas Log
Parking & Garage
- Attached
- Paved
- Garage Door Opener
Exterior Features
- Architectural
- Attached
- Paved
- Garage Door Opener
- Slab
- Front Porch
- Rear Porch
- Hardboard Siding
H O A & Association
- Street Lights
Property Overview
- Two
- Craftsman
Utilities & Systems
- Public Sewer
- Electric
- Natural Gas
- Cable Available
- Public
Listing Agent Information
The information is being provided by Greater Greenville MLS. Information deemed reliable but not guaranteed. Information is provided for consumers' personal, non-commercial use, and may not be used for any purpose other than the identification of potential properties for purchase. Copyright 2025 Greater Greenville MLS. All Rights Reserved.
You Might Also Like...
Interested in selling in Mulberry Estates?

