


$349,900
105 Allenby Lane
About This Property
This Property Has Been Sold
This property sold 1 year ago and is no longer available for purchase.
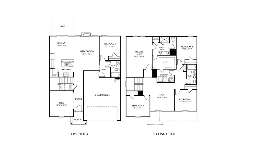
View active listings in Garrison Grove →Brand new, energy-efficient home ready NOW! Sip your coffee from the Chatham’s charming back patio. Inside, versatile flex spaces allow you to customize the main level to fit your needs.
The impressive primary suite boasts dual sinks and a large walk-in closet. Garrison Grove offers 7 floorplans featuring spacious great rooms with fireplaces, flex spaces to suit your lifestyle and patios for outdoor entertaining. Carefully selected designer-curated packages included with each home make Garrison Grove a must-see.
Owning your dream home is made easy with clear pricing and a simple buying process. Each of our homes is built with innovative, energy-efficient features designed to help you enjoy more savings, better health, real comfort and peace of mind.
Quick Facts
Time on Site
2 years ago
Property Type
Residential
Year Built
2023
Lot Size
7,840 sqft
Price/Sq.Ft.
$131
Property Details
Schools
Features & Amenities
Location & Map
Map View
Loading map...
Additional Information
Basement
Community
- Common Areas
- Playground
Lot & Land
Primary Suite
- Bath - Full
- Double Vanity
- Shower Only
- Walk-in Closet
Interior Details
- Carpet
- Ceramic Tile
- Vinyl
- Loft
- Office/Study
New Construction
Parking & Garage
Exterior Features
- Architectural
- Slab
- Vinyl Siding
H O A & Association
Property Overview
- Two
Utilities & Systems
- Public Sewer
- Public
