



$819,500
103 Chestnut Pond Lane
Simpsonville, SC 29681
About This Property
This Property Has Been Sold
This property sold 5 years ago and is no longer available for purchase.
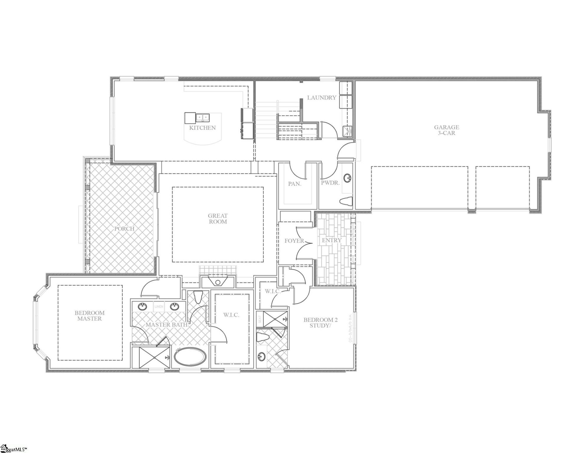
View active listings in Chestnut Pond →This beautiful home is under construction in the Chestnut Pond Subdivision. This 1.5 story home has an open floor plan with Master Bedroom and an additional bedroom with private bathroom on main level.
Powder room is also on main level. Two bedrooms with an additional bathroom, and Bonus Room upstairs with large unfinished area for storage. Custom cabinetry throughout home with granite countertops.
The finishes of this custom home make it a must to go look at.
GVL MLS # 1441202
Quick Facts
Time on Site
5 years ago
Property Type
Residential
Lot Size
9,583 sqft
HOA Fees
$2,395/yr
Property Details
Schools
Features & Amenities
Features:
- Bookcases
- High Ceilings
- Ceiling Fan(s)
- Ceiling Smooth
- Tray Ceiling(s)
- Central Vacuum
- Granite Counters
- Open Floorplan
- Soaking Tub
- Walk-In Closet(s)
- Pantry
Location & Map
Map View
Loading map...
Additional Information
Community
- Common Areas
- Gated
- Street Lights
- Recreational Path
- Sidewalks
- Lawn Maintenance
- Neighborhood Lake/Pond
Lot & Land
- 1/2 Acre or Less
- Sidewalk
- Sloped
- Sprklr In Grnd-Full Yard
Tax Information
Interior Details
- Carpet
- Ceramic Tile
- Wood
- Down Draft
- Gas Cooktop
- Dishwasher
- Disposal
- Convection Oven
- Oven
- Electric Oven
- Microwave
- Microwave-Convection
- Gas Water Heater
- Tankless Water Heater
- Sink
- 1st Floor
- Walk-in
- Laundry Room
- Bookcases
- High Ceilings
- Ceiling Fan(s)
- Ceiling Smooth
- Tray Ceiling(s)
- Central Vacuum
- Granite Counters
- Open Floorplan
- Soaking Tub
- Walk-In Closet(s)
- Pantry
- Gas Log
Parking & Garage
- Attached
- Paved
- Garage Door Opener
- Key Pad Entry
Exterior Features
- Architectural
- Attached
- Paved
- Garage Door Opener
- Key Pad Entry
- Crawl Space
- Screened
- Patio
- Front Porch
- Hardboard Siding
- Stone
- Brick Veneer
H O A & Association
Property Overview
- One and One Half
- European
Utilities & Systems
- Public Sewer
- Central Air
- Electric
- Multi Units
- Forced Air
- Multi-Units
- Natural Gas
- Underground Utilities
- Cable Available
- Public
Listing Agent Information
The information is being provided by Greater Greenville MLS. Information deemed reliable but not guaranteed. Information is provided for consumers' personal, non-commercial use, and may not be used for any purpose other than the identification of potential properties for purchase. Copyright 2025 Greater Greenville MLS. All Rights Reserved.
You Might Also Like...
Interested in selling in Chestnut Pond?

