




$435,000
939 Exeter Drive
Sherrills Ford, NC 28673
About This Property
This Property Has Been Sold
This property sold 4 months ago and is no longer available for purchase.
View active listings in The Retreat at Laurelbrook →Welcome to this beautifully designed home in a 55+ active adult community, where resort-style amenities are coming soon—including a sparkling pool, modern clubhouse, and pickleball courts for endless social and recreational opportunities. The main level offers a spacious primary suite with a tiled shower, double vanity, and walk-in closet, along with two secondary bedrooms, a full bath, and a pocket office—perfect for working from home or staying organized. The kitchen features a large island, quartz countertops, a gas range, and overlooks the bright family room with a cozy gas fireplace.
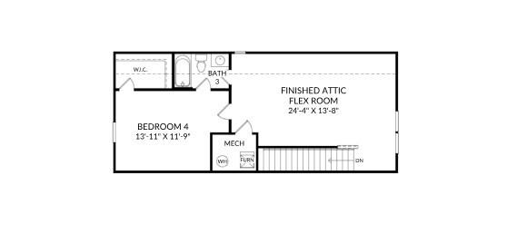
Enjoy outdoor living year-round on the screened back patio. Upstairs, you’ll find a large loft, a fourth bedroom, and another full bath—ideal for guests, hobbies, or extra living space. With its thoughtful layout, designer finishes, and low-maintenance exterior, this home is perfect for those looking to relax, connect, and thrive.
CAR MLS # 280025654
Quick Facts
Time on Site
9 months ago
Property Type
Residential
Year Built
2025
Price/Sq.Ft.
$162
Property Details
Schools
Features & Amenities
Features:
- Drop Zone
- Kitchen Island
- Open Floorplan
- Pantry
- Storage
- Walk-In Closet(s)
Location & Map
Map View
Loading map...
Additional Information
Utilities
- Public Sewer
- Public
Lot And Land
Agent Contacts
- Palmetto Park Realty Team Fort Mill: 803.548.6123
Interior Details
- Forced Air
- Natural Gas
- Carpet
- Tile
- Vinyl
- Laundry Room
- Main Level
- Sink
- Drop Zone
- Kitchen Island
- Open Floorplan
- Pantry
- Storage
- Walk-In Closet(s)
- Carbon Monoxide Detector(s)
- Smoke Detector(s)
- Family Room
- Gas Log
Exterior Features
- Architectural Shingle
- Lawn Maintenance
- Fiber Cement
- Stone Veneer
- Covered
- Patio
- Screened
Parking And Garage
- Driveway
- Attached Garage
- Garage Faces Front
Financial Information
Dwelling And Structure
- Traditional
Basement And Foundation
- Slab
Zoning And Restrictions
Square Footage And Levels
- One and One Half
Additional C A R Information
IDX information is provided exclusively for consumers' personal, non-commercial use only; it may not be used for any purpose other than to identify prospective properties consumers may be interested in purchasing. Data is deemed reliable but is not guaranteed accurate by the MLS GRID. Use of this site may be subject to an end user license agreement. Based on information submitted to the MLS GRID as of Fri, Nov 21, 2025. All data is obtained from various sources and may not have been verified by broker or MLS GRID. Supplied Open House Information is subject to change without notice. All information should be independently reviewed and verified for accuracy. Properties may or may not be listed by the office/agent presenting the information. Some IDX listings have been excluded from this website. Any use by you of search facilities of data on the site, other than by a consumer looking to purchase real estate, is prohibited. DMCA Notice: Palmetto Park Realty respects the intellectual property rights of others. If you believe that your work has been copied in a way that constitutes copyright infringement, please provide our designated agent with written notice containing the following information: (1) identification of the copyrighted work claimed to have been infringed; (2) identification of the material that is claimed to be infringing; (3) your contact information; (4) a statement that you have a good faith belief that use of the material is not authorized; and (5) a statement that the information in the notification is accurate and you are authorized to act on behalf of the copyright owner. Please send DMCA notices to: [email protected]
You Might Also Like...
Interested in selling in The Retreat at Laurelbrook?