




$269,990
502 Silver Birch Court
Shelby, NC 28152
About This Property
What's Special: Corner Lot | Loft | 1st Floor Primary Suite. Proposed New Construction - November Completion! Built by America's Most Trusted Home Builder.
Welcome to the Linville at 502 Silver Birch Court in Fincastle Glen! This two story home offers a bright open design with plenty of natural light and a kitchen that flows into the casual dining area and great room. Just off the great room, the first floor primary suite features an ensuite bath with a dual sink vanity, a walk in shower and a walk in closet.
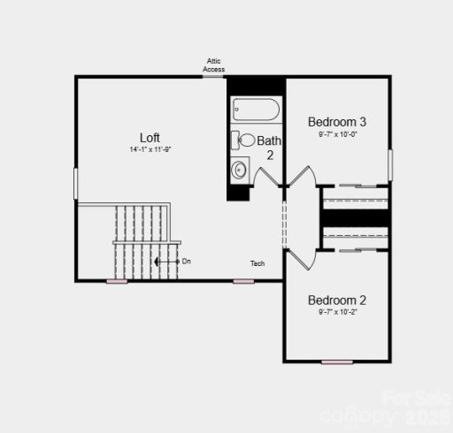
The main level also includes a powder room and a laundry room for added convenience. Upstairs, a cozy loft sits between two secondary bedrooms with a shared full bath, creating an ideal space for relaxing or working. Life at Fincastle Glen in Shelby brings a friendly community atmosphere close to Shelby Middle School and minutes from Uptown Shelby’s live music, local shops and cafés, along with easy access to I 85, I 74, Uptown Charlotte, Charlotte Airport and Asheville.
CAR MLS # 295553916
Quick Facts
Time on Site
3 months ago
Property Type
Residential
Year Built
2026
Price/Sq.Ft.
$152
Property Details
Schools
Features & Amenities
Features:
- Entrance Foyer
- Kitchen Island
- Open Floorplan
- Pantry
- Walk-In Closet(s)
- Walk-In Pantry
Location & Map
Map View
Loading map...
Additional Information
Utilities
- Public Sewer
- Cable Available
- Electricity Connected
- Satellite Internet Available
- Underground Power Lines
- Underground Utilities
- Wired Internet Available
- City
Lot And Land
Agent Contacts
- Palmetto Park Realty Team Fort Mill: 803.548.6123
Interior Details
- Electric
- Heat Pump
- Zoned
- Carpet
- Laminate
- Tile
- Vinyl
- Electric Dryer Hookup
- Laundry Room
- Main Level
- Washer Hookup
- Entrance Foyer
- Kitchen Island
- Open Floorplan
- Pantry
- Walk-In Closet(s)
- Walk-In Pantry
- Carbon Monoxide Detector(s)
- Smoke Detector(s)
Exterior Features
- Architectural Shingle
- Vinyl
- Front Porch
Parking And Garage
- Driveway
- Attached Garage
- Garage Door Opener
- Garage Faces Front
Financial Information
Basement And Foundation
- Slab
Zoning And Restrictions
Square Footage And Levels
- Two
Additional C A R Information
- Architectural Review
- Deed
IDX information is provided exclusively for consumers' personal, non-commercial use only; it may not be used for any purpose other than to identify prospective properties consumers may be interested in purchasing. Data is deemed reliable but is not guaranteed accurate by the MLS GRID. Use of this site may be subject to an end user license agreement. Based on information submitted to the MLS GRID as of Sun, May 17, 2026. All data is obtained from various sources and may not have been verified by broker or MLS GRID. Supplied Open House Information is subject to change without notice. All information should be independently reviewed and verified for accuracy. Properties may or may not be listed by the office/agent presenting the information. Some IDX listings have been excluded from this website. Any use by you of search facilities of data on the site, other than by a consumer looking to purchase real estate, is prohibited. DMCA Notice: Palmetto Park Realty respects the intellectual property rights of others. If you believe that your work has been copied in a way that constitutes copyright infringement, please provide our designated agent with written notice containing the following information: (1) identification of the copyrighted work claimed to have been infringed; (2) identification of the material that is claimed to be infringing; (3) your contact information; (4) a statement that you have a good faith belief that use of the material is not authorized; and (5) a statement that the information in the notification is accurate and you are authorized to act on behalf of the copyright owner. Please send DMCA notices to: [email protected]