




$265,990
406 Silver Birch Court
Shelby, NC 28152
About This Property
What's Special: Oversized Patio | 1st Floor Guest Bedroom | Loft | Oversized Lot. New Construction - June Completion! Built by America's Most Trusted Home Builder.
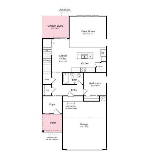
Welcome to the Pisgah at 406 Silver Birch Court in Fincastle Glen. This two-story home offers a thoughtful design with a first-floor bedroom and full bath, perfect for guests. The open-concept layout features a kitchen that flows into the casual dining area and spacious great room, with the option to add outdoor living space.
Upstairs, the primary suite provides a relaxing retreat alongside two additional bedrooms, a full bath, a laundry room, and a loft with a tech area ideal for working from home. Fincastle Glen in Shelby, NC offers a connected, comfortable lifestyle in a welcoming neighborhood designed for walkability and everyday convenience. Sidewalk-lined streets encourage community connection, with Shelby Middle School located directly across the street and Uptown Shelby’s live music, local shops, cafés, and dining just a short walk or drive away.
CAR MLS # 298165218
Quick Facts
Time on Site
2 months ago
Property Type
Residential
Year Built
2026
Price/Sq.Ft.
$121
Property Details
Schools
Features & Amenities
Features:
- Entrance Foyer
- Kitchen Island
- Open Floorplan
- Pantry
- Walk-In Closet(s)
Location & Map
Map View
Loading map...
Additional Information
Utilities
- Public Sewer
- Cable Available
- Electricity Connected
- Satellite Internet Available
- Underground Power Lines
- Underground Utilities
- Wired Internet Available
- City
Lot And Land
Agent Contacts
- Palmetto Park Realty Team Fort Mill: 803.548.6123
Interior Details
- Electric
- Heat Pump
- Zoned
- Carpet
- Laminate
- Tile
- Vinyl
- Electric Dryer Hookup
- Laundry Room
- Upper Level
- Washer Hookup
- Entrance Foyer
- Kitchen Island
- Open Floorplan
- Pantry
- Walk-In Closet(s)
- Carbon Monoxide Detector(s)
- Smoke Detector(s)
Exterior Features
- Architectural Shingle
- Vinyl
- Porch
Parking And Garage
- Driveway
- Attached Garage
- Garage Door Opener
- Garage Faces Front
Financial Information
Basement And Foundation
- Slab
Zoning And Restrictions
Square Footage And Levels
- Two
Additional C A R Information
- Architectural Review
- Deed
IDX information is provided exclusively for consumers' personal, non-commercial use only; it may not be used for any purpose other than to identify prospective properties consumers may be interested in purchasing. Data is deemed reliable but is not guaranteed accurate by the MLS GRID. Use of this site may be subject to an end user license agreement. Based on information submitted to the MLS GRID as of Mon, Apr 20, 2026. All data is obtained from various sources and may not have been verified by broker or MLS GRID. Supplied Open House Information is subject to change without notice. All information should be independently reviewed and verified for accuracy. Properties may or may not be listed by the office/agent presenting the information. Some IDX listings have been excluded from this website. Any use by you of search facilities of data on the site, other than by a consumer looking to purchase real estate, is prohibited. DMCA Notice: Palmetto Park Realty respects the intellectual property rights of others. If you believe that your work has been copied in a way that constitutes copyright infringement, please provide our designated agent with written notice containing the following information: (1) identification of the copyrighted work claimed to have been infringed; (2) identification of the material that is claimed to be infringing; (3) your contact information; (4) a statement that you have a good faith belief that use of the material is not authorized; and (5) a statement that the information in the notification is accurate and you are authorized to act on behalf of the copyright owner. Please send DMCA notices to: [email protected]