

$427,900
704 Hidden Creek Court
Seneca, SC 29678
About This Property
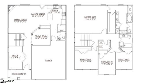
Check out 704 Hidden Creek Court, a stunning new home in our Shadowood II community! This thoughtfully designed two-story home features four bedrooms, two and a half bathrooms, and a two-car garage. With its flexible layout and modern flow, this home is perfect for both everyday living and entertaining.
From the covered entry, step into a welcoming foyer that leads to a dedicated office and a formal dining room. The kitchen includes modern appliances, a pantry, and a large island that overlooks the casual dining area and living room, creating an open and connected space for gatherings of any size. Upstairs, the primary suite provides a relaxing retreat with a spacious bathroom featuring dual vanities, a soaking tub, a separate shower, and a walk-in closet.
Three additional bedrooms and a full bathroom are also located on the second floor, along with a conveniently placed laundry area. With its comfortable design, open living areas, and thoughtful details throughout, this home blends modern style with everyday functionality. Pictures are representative.
GVL MLS # 1586801
Quick Facts
Time on Site
yesterday
Property Type
Residential
Year Built
2026
Lot Size
13,503 sqft
Price/Sq.Ft.
$181
HOA Fees
$400/yr
Property Details
Schools
Features & Amenities
Features:
- Ceiling Fan(s)
- Ceiling Smooth
- Open Floorplan
- Soaking Tub
- Walk-In Closet(s)
- Countertops – Quartz
- Pantry
- Radon System
Location & Map
Map View
Loading map...
Additional Information
Community
- Common Areas
- Street Lights
- Pool
Lot & Land
- 1/2 Acre or Less
- Few Trees
Tax Information
Interior Details
- Carpet
- Ceramic Tile
- Laminate
- Gas Cooktop
- Dishwasher
- Disposal
- Self Cleaning Oven
- Oven
- Electric Oven
- Microwave
- Gas Water Heater
- Tankless Water Heater
- 2nd Floor
- Walk-in
- Electric Dryer Hookup
- Ceiling Fan(s)
- Ceiling Smooth
- Open Floorplan
- Soaking Tub
- Walk-In Closet(s)
- Countertops – Quartz
- Pantry
- Radon System
- Gas Log
Parking & Garage
- Attached
- Concrete
- Garage Door Opener
Exterior Features
- Architectural
- Attached
- Concrete
- Garage Door Opener
- Crawl Space
- Patio
- Front Porch
- Stone
- Vinyl Siding
H O A & Association
- Pool
- Street Lights
Property Overview
- Two
- Transitional
Utilities & Systems
- Public Sewer
- Central Air
- Electric
- Damper Controlled
- Forced Air
- Natural Gas
- Damper Controlled
- Underground Utilities
- Cable Available
- Public
Listing Agent Information
The information is being provided by Greater Greenville MLS. Information deemed reliable but not guaranteed. Information is provided for consumers' personal, non-commercial use, and may not be used for any purpose other than the identification of potential properties for purchase. Copyright 2025 Greater Greenville MLS. All Rights Reserved.


