




$495,990
420 Fox Pond Drive
Seneca, SC 29678
About This Property
This Property Has Been Sold
This property sold 2 months ago and is no longer available for purchase.
View active listings in Wells Crossing →Welcome to Wells Crossing! We are the closest new homes to Clemson with private homesites and pickleball, all near Lake Keowee! This Craftsman style Wakefield home with over 2500 square feet of living space is perfect for main floor living.
Upon entering the home from your front porch there is a spacious entry hall with a bedroom and full bath adjacent to the foyer along with a dedicated study with french doors and built in bookcase, great for a home office. The amazing chefs kitchen features light brown cabinetry, granite countertops, large center island with sink for additional prep space and seating, under cabinet lighting, tile backsplash and upgraded stainless steel appliances. The living room with its high ceilings and tall windows give the room lots of natural light along with a cozy gas fireplace with stone surround.
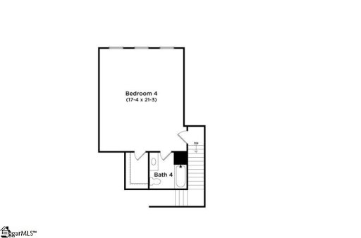
The Primary Suite is situated off the living room and features trey ceilings, double vanities, walk in closet and tiled shower with seat and glass door. The laundry room and a powder room complete the main level. Upstairs is a fourth bedroom with walk in closet and full bath.
GVL MLS # 1579441
Quick Facts
Time on Site
3 months ago
Property Type
Residential
Year Built
2026
Lot Size
7,840 sqft
Price/Sq.Ft.
$196
HOA Fees
$840/yr
Property Details
Schools
Features & Amenities
Features:
- Bookcases
- High Ceilings
- Ceiling Smooth
- Tray Ceiling(s)
- Granite Counters
- Open Floorplan
- Walk-In Closet(s)
- Split Floor Plan
- Pantry
Location & Map
Map View
Loading map...
Additional Information
Community
- Common Areas
- Street Lights
- Other
Lot & Land
- 1/2 Acre or Less
Tax Information
Interior Details
- Carpet
- Luxury Vinyl
- Dishwasher
- Disposal
- Self Cleaning Oven
- Electric Oven
- Free-Standing Electric Range
- Microwave
- Microwave-Convection
- Gas Water Heater
- 1st Floor
- Electric Dryer Hookup
- Laundry Room
- Bookcases
- High Ceilings
- Ceiling Smooth
- Tray Ceiling(s)
- Granite Counters
- Open Floorplan
- Walk-In Closet(s)
- Split Floor Plan
- Pantry
- Gas Log
Parking & Garage
- Attached
- Paved
- Garage Door Opener
Exterior Features
- Architectural
- Attached
- Paved
- Garage Door Opener
- Slab
- Front Porch
- Rear Porch
- Hardboard Siding
H O A & Association
- Street Lights
- Other/See Remarks
Property Overview
- Two
- Craftsman
Utilities & Systems
- Public Sewer
- Electric
- Natural Gas
- Cable Available
- Public
Listing Agent Information
The information is being provided by Greater Greenville MLS. Information deemed reliable but not guaranteed. Information is provided for consumers' personal, non-commercial use, and may not be used for any purpose other than the identification of potential properties for purchase. Copyright 2025 Greater Greenville MLS. All Rights Reserved.
You Might Also Like...
Interested in selling in Wells Crossing?


