




$299,900
230 Wimbledon Way
About This Property
This Property Has Been Sold
This property sold 1 year ago and is no longer available for purchase.
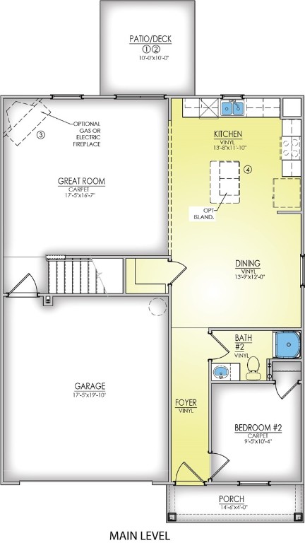
View active listings in Fairfield Place →Welcome to 230 Wimbledon Way, this beautiful 5 Bedroom, 3 bath homes, on Lot #20 the Benjamin model which located in the heart of Seneca. Fairfield is centrally located within downtown Seneca and only minutes from beautiful Lake Keowee and Lake Hartwell, which offers many outdoor activities, within 10 minutes to South Cove County Park for your fishing, hiking, and camping needs, within 5 minutes to Publix and Ingles for your shopping necessities, and Clemson University is only 15 minutes away "Go Tigers".
Quick Facts
Time on Site
2 years ago
Property Type
Residential
Year Built
2024
Price/Sq.Ft.
$134
Property Details
Schools
Features & Amenities
Location & Map
Map View
Loading map...
Additional Information
This information is deemed reliable, but not guaranteed. Neither, the Western Upstate Association of REALTORS®, Inc. or Western Upstate Multiple Listing Service of South Carolina Inc., nor the listing broker, nor their agents or subagents are responsible for the accuracy of the information. The buyer is responsible for verifying all information. This information is provided by the Western Upstate Association of REALTORS®, Inc. and Western Upstate Multiple Listing Service of South Carolina, Inc. for use by its members and is not intended for the use for any other purpose. Information is provided for consumers' personal, non-commercial use, and may not be used for any purpose other than the identification of potential properties for purchase. The data relating to real estate for sale on this Web site comes in part from the Broker Reciprocity Program of the Western Upstate Association of REALTORS®, Inc. and the Western Upstate Multiple Listing Service, Inc.
