




$40,000
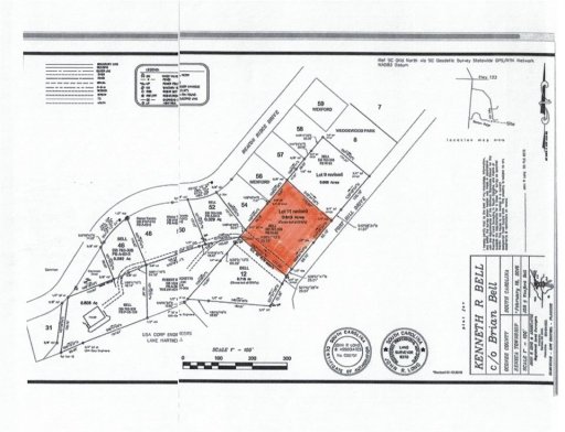
177 Bellwood Drive Lot 12
Seneca, SC 29672
About This Property
This Property Has Been Sold
This property sold 7 years ago and is no longer available for purchase.
View active listings in Wedgewood Park →Very nice building lot in desirable Wexford. Just 2 miles from Clemson,6 miles from Seneca and 18 Miles from Easley. See additional pics for 2 other lots for sale as well.
WUM MLS # 425677092
Quick Facts
Time on Site
8 years ago
Property Type
Land
Property Details
Schools
Features & Amenities
Location & Map
Map View
Loading map...
Additional Information
Lot & Land
- Level
- OutsideCityLimits
- Subdivision
- Trees
Community & H O A
Tax Information
Listing Agent Information
This information is deemed reliable, but not guaranteed. Neither, the Western Upstate Association of REALTORS®, Inc. or Western Upstate Multiple Listing Service of South Carolina Inc., nor the listing broker, nor their agents or subagents are responsible for the accuracy of the information. The buyer is responsible for verifying all information. This information is provided by the Western Upstate Association of REALTORS®, Inc. and Western Upstate Multiple Listing Service of South Carolina, Inc. for use by its members and is not intended for the use for any other purpose. Information is provided for consumers' personal, non-commercial use, and may not be used for any purpose other than the identification of potential properties for purchase. The data relating to real estate for sale on this Web site comes in part from the Broker Reciprocity Program of the Western Upstate Association of REALTORS®, Inc. and the Western Upstate Multiple Listing Service, Inc.
You Might Also Like...
Interested in selling in Wedgewood Park?


