




$415,000
420 Bonaventure Drive
Salisbury, NC 28147
About This Property
This Property Has Been Sold
This property sold 2 years ago and is no longer available for purchase.
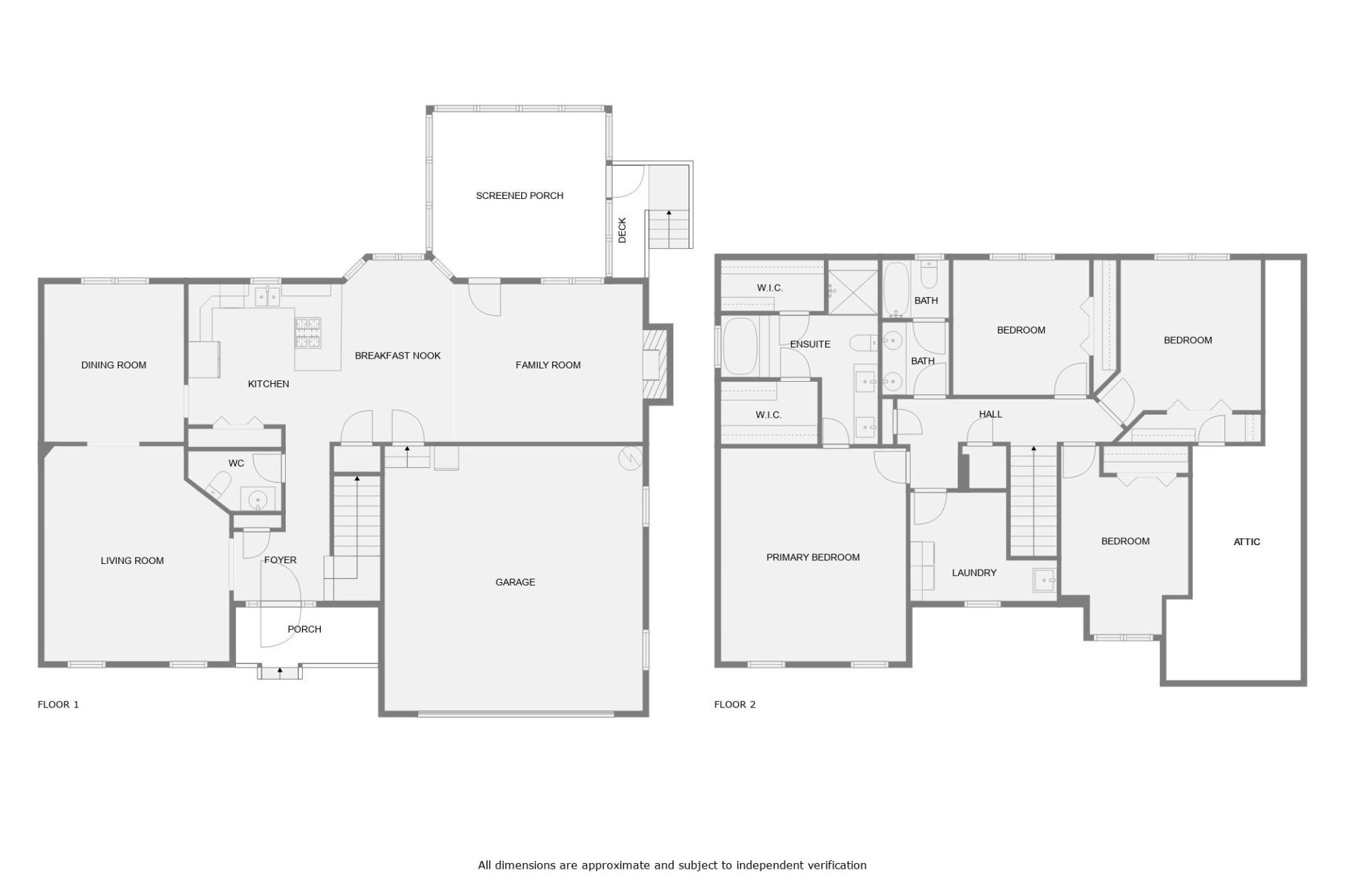
View active listings in Glen Heather →Welcome to this charming and inviting home nestled in a picturesque setting! Step onto the welcoming rocking chair front porch, where you can sip your morning coffee and watch the world go by. As you explore further, you'll be delighted to find a large screened-in porch that beckons you to relax and unwind, offering the perfect spot to enjoy the outdoors.
The fenced backyard is a nature lover's dream, boasting a wooded view to the side and back, providing both privacy and a serene backdrop for your outdoor activities. Inside, this home offers plenty of spaces to gather with friends and family. The beautifully updated kitchen is a chef's delight.
The primary bedroom is a true retreat, boasting ample space and a stunning updated bathroom that will make you feel like you're in a spa. Relax, refresh, and recharge in this luxurious space. While the home is listed as a 3 bedroom due to the septic permit, there is a VERSATILE 4TH ROOM WITH A CLOSET offering flexibility to suit your needs.
CAR MLS # 118074290
Quick Facts
Time on Site
2 years ago
Property Type
Residential
Year Built
1998
Price/Sq.Ft.
$161
Property Details
Schools
Features & Amenities
Location & Map
Map View
Loading map...
Additional Information
Utilities
- Septic Installed
- Well
Lot And Land
- Fenced
Agent Contacts
- Palmetto Park Realty Team Fort Mill: 803.548.6123
Interior Details
- Heat Pump
- Carpet
- Tile
- Wood
- Laundry Room
- Family Room
Exterior Features
- Shingle
- Vinyl
- Covered
- Front Porch
- Screened
Parking And Garage
- Attached Garage
Financial Information
Dwelling And Structure
- Traditional
Basement And Foundation
- Crawl Space
Zoning And Restrictions
Square Footage And Levels
- Two
Additional C A R Information
IDX information is provided exclusively for consumers' personal, non-commercial use only; it may not be used for any purpose other than to identify prospective properties consumers may be interested in purchasing. Data is deemed reliable but is not guaranteed accurate by the MLS GRID. Use of this site may be subject to an end user license agreement. Based on information submitted to the MLS GRID as of Fri, Nov 10, 2023. All data is obtained from various sources and may not have been verified by broker or MLS GRID. Supplied Open House Information is subject to change without notice. All information should be independently reviewed and verified for accuracy. Properties may or may not be listed by the office/agent presenting the information. Some IDX listings have been excluded from this website. Any use by you of search facilities of data on the site, other than by a consumer looking to purchase real estate, is prohibited. DMCA Notice: Palmetto Park Realty respects the intellectual property rights of others. If you believe that your work has been copied in a way that constitutes copyright infringement, please provide our designated agent with written notice containing the following information: (1) identification of the copyrighted work claimed to have been infringed; (2) identification of the material that is claimed to be infringing; (3) your contact information; (4) a statement that you have a good faith belief that use of the material is not authorized; and (5) a statement that the information in the notification is accurate and you are authorized to act on behalf of the copyright owner. Please send DMCA notices to: [email protected]
You Might Also Like...
Interested in selling in Glen Heather?