




$202,900
2039 Hillman Way
Roebuck, SC 29376
About This Property
This Property Has Been Sold
This property sold 14 days ago and is no longer available for purchase.
View active listings in Trenton Place →Discover the perfect balance of affordability and elevated living at Trenton Place, a thoughtfully designed community just minutes from Downtown Spartanburg. USDA eligible! Conveniently located near major employers with easy access to I-26 and I-85, Trenton Place offers unmatched convenience and comfort.
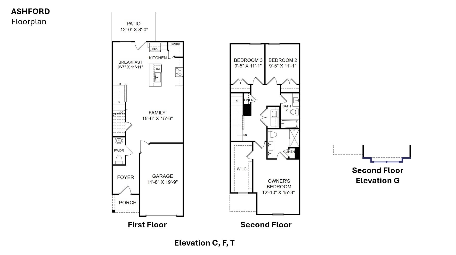
This move in ready, 2-story townhome features an open-concept floor plan with 3 spacious bedrooms, 2.5 bathrooms, and a one car garage. Enjoy modern finishes such as hard surface flooring in the main living areas, elegant quartz countertops, white shaker cabinets, a gas stove, a large kitchen island, a huge corner pantry and included refrigerator.
This home also includes whole house blinds. Step into the primary suite, where you’ll find a beautiful bath with sliding glass shower doors, a dual vanity, and a generous walk-in closet that is a must see. Entertain with ease on your large private rear patio, complete with fencing on each side for privacy – perfect for gatherings and quiet evenings alike.
SPN MLS # 332486
Quick Facts
Time on Site
2 months ago
Property Type
Residential
Year Built
2026
Lot Size
2,613 sqft
Price/Sq.Ft.
$130
Property Details
Schools
Features & Amenities
Features:
- Attic Stairs Pulldown
- Walk-In Closet(s)
- Ceiling - Smooth
- Solid Surface Counters
- Entrance Foyer
- Open Floorplan
- Walk-In Pantry
Location & Map
Map View
Loading map...
Additional Information
Basement
Security
- Smoke Detector(s)
Community
- Common Areas
- See Remarks
- Street Lights
- Playground
- Lawn
- Private Roads
Lot & Land
- Corner Lot
- Level
Primary Suite
- Bath - Full
- Double Vanity
- Owner on 2nd level
- Shower Only
- Walk-in Closet
Interior Details
- Carpet
- Laminate
- Vinyl
- Dishwasher
- Disposal
- Microwave
- Gas Oven
- Self Cleaning Oven
- Gas Range
- Refrigerator
- 2nd Floor
- Laundry Closet
- Attic Stairs Pulldown
- Walk-In Closet(s)
- Ceiling - Smooth
- Solid Surface Counters
- Entrance Foyer
- Open Floorplan
- Walk-In Pantry
New Construction
- Veranda Homes
- LLC
Parking & Garage
- Attached
- Garage Door Opener
- Driveway
Exterior Features
- Architectural
- Composition
- Sprinkler System
- Slab
- Stone
- Vinyl Siding
- Patio
- Porch
H O A & Association
- Common Area
- Electricity
- Lawn Service
- See Remarks
- Parking
- Street Lights
- Termite Control
Property Overview
- Two
- Craftsman
Utilities & Systems
- Public Sewer
- Central Air
- Heat Pump
- Zoned
- Forced Air
- Gas Available
- Gas
- Tankless
- Public
Listing Agent Information
You Might Also Like...
Interested in selling in Trenton Place?


