




$207,900
2038 Hillman Way
Roebuck, SC 29376
About This Property
Discover the perfect balance of affordability and elevated living at Trenton Place, a thoughtfully designed community just minutes from Downtown Spartanburg. USDA eligible! Conveniently located near major employers with easy access to I-26 and I-85, Trenton Place offers unmatched convenience and comfort.
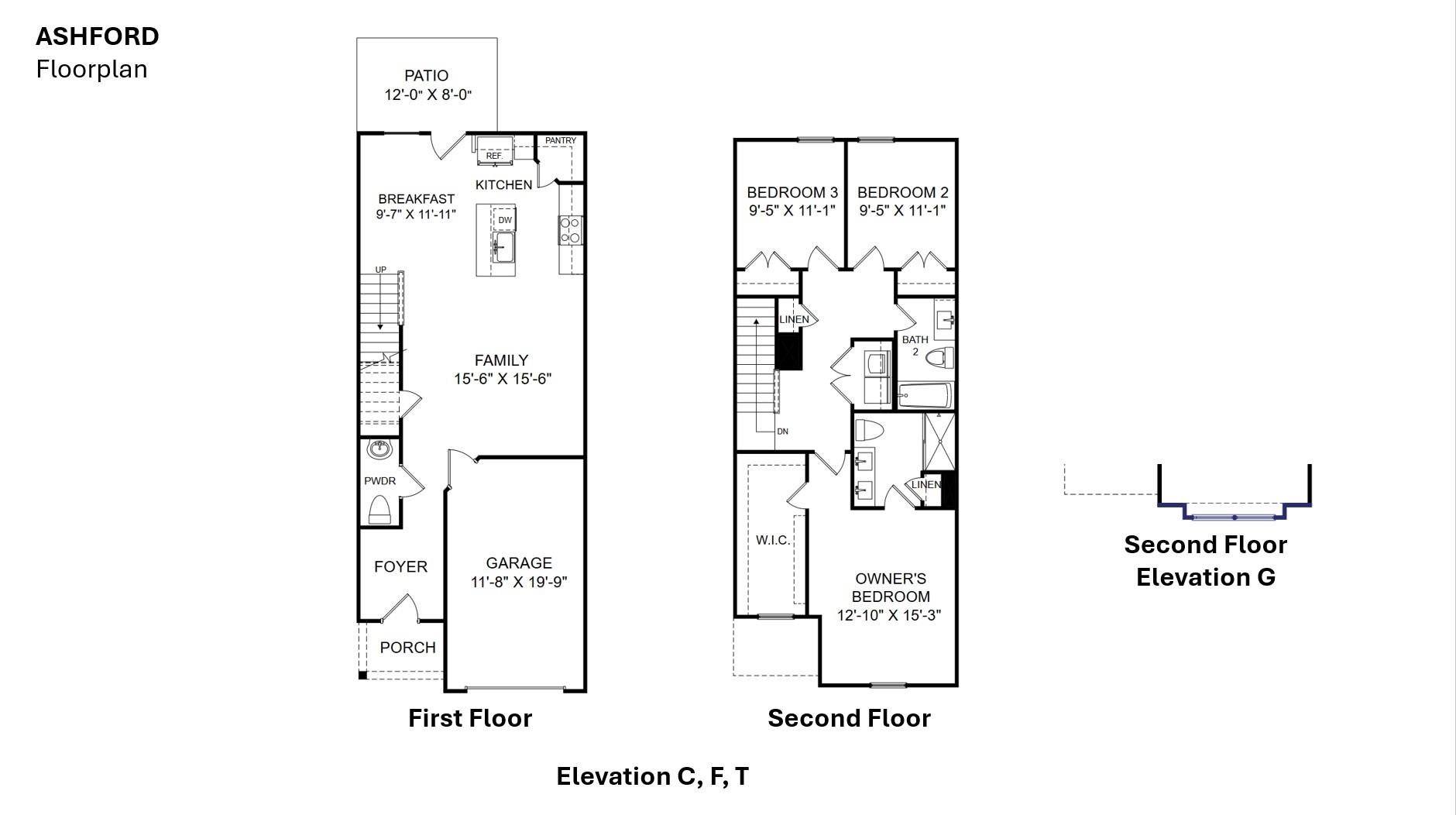
This move in ready, 2-story townhome features an open-concept floor plan with 3 spacious bedrooms, 2.5 bathrooms, and a one car garage. Enjoy modern finishes such as hard surface flooring in the main living areas, elegant quartz countertops, white shaker cabinets, a gas stove, a large kitchen island, a huge corner pantry and included refrigerator.
This home also includes whole house blinds. Step into the primary suite, where you’ll find a beautiful bath with sliding glass shower doors, a dual vanity, and a generous walk-in closet that is a must see. Entertain with ease on your large private rear patio, complete with fencing on each side for privacy – perfect for gatherings and quiet evenings alike.
SPN MLS # 334395
Quick Facts
Time on Site
10 days ago
Property Type
Residential
Year Built
2026
Lot Size
2,613 sqft
Price/Sq.Ft.
$133
Property Details
Schools
Features & Amenities
Features:
- Attic Stairs Pulldown
- Walk-In Closet(s)
- Ceiling - Smooth
- Solid Surface Counters
- Entrance Foyer
- Open Floorplan
- Walk-In Pantry
Location & Map
Map View
Loading map...
Additional Information
Basement
Security
- Smoke Detector(s)
Community
- Common Areas
- See Remarks
- Street Lights
- Playground
- Lawn
- Private Roads
Lot & Land
- Corner Lot
- Level
Primary Suite
- Bath - Full
- Double Vanity
- Owner on 2nd level
- Shower Only
- Walk-in Closet
Interior Details
- Carpet
- Laminate
- Vinyl
- Dishwasher
- Disposal
- Microwave
- Gas Oven
- Self Cleaning Oven
- Gas Range
- Refrigerator
- 2nd Floor
- Laundry Closet
- Attic Stairs Pulldown
- Walk-In Closet(s)
- Ceiling - Smooth
- Solid Surface Counters
- Entrance Foyer
- Open Floorplan
- Walk-In Pantry
New Construction
- Veranda Homes
- LLC
Parking & Garage
- Attached
- Garage Door Opener
- Driveway
Exterior Features
- Architectural
- Composition
- Sprinkler System
- Slab
- Stone
- Vinyl Siding
- Patio
- Porch
H O A & Association
- Common Area
- Electricity
- Lawn Service
- See Remarks
- Parking
- Street Lights
- Termite Control
Property Overview
- Two
- Craftsman
Utilities & Systems
- Public Sewer
- Central Air
- Heat Pump
- Zoned
- Forced Air
- Gas Available
- Gas
- Tankless
- Public


