




$207,900
2040 Hillman Way
Roebuck, SC 29376
About This Property
Discover the perfect balance of affordability and elevated living at Trenton Place, a thoughtfully designed community just minutes from Downtown Spartanburg. USDA eligible! Conveniently located near major employers with easy access to I-26 and I-85, Trenton Place offers unmatched convenience and comfort.
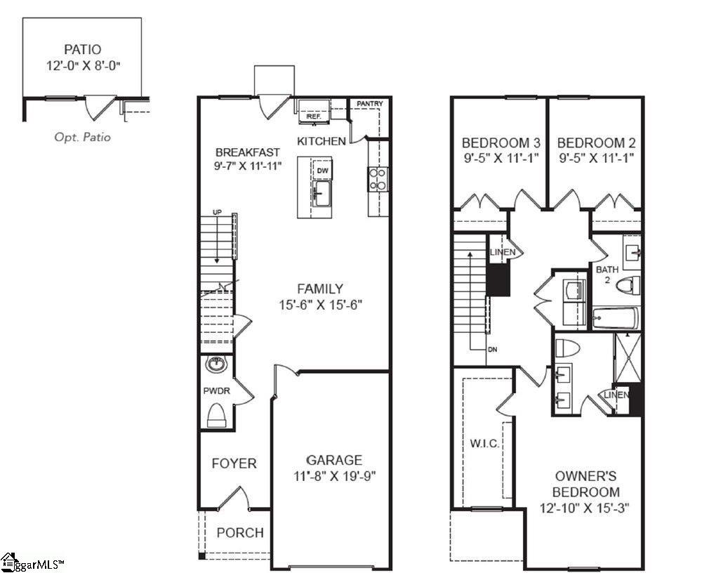
This move in ready, 2-story townhome features an open-concept floor plan with 3 spacious bedrooms, 2.5 bathrooms, and a one car garage. Enjoy modern finishes such as hard surface flooring in the main living areas, elegant quartz countertops, white shaker cabinets, a gas stove, a large kitchen island, a huge corner pantry and included refrigerator.
This home also includes whole house blinds. Step into the primary suite, where you’ll find a beautiful bath with sliding glass shower doors, a dual vanity, and a generous walk-in closet that is a must see. Entertain with ease on your large private rear patio, complete with fencing on each side for privacy – perfect for gatherings and quiet evenings alike.
GVL MLS # 1584115
Quick Facts
Time on Site
9 days ago
Property Type
Residential
Lot Size
2,613 sqft
Price/Sq.Ft.
$133
HOA Fees
$137/mo
Property Details
Schools
Features & Amenities
Features:
- Ceiling Smooth
- Open Floorplan
- Walk-In Closet(s)
- Countertops – Quartz
Location & Map
Map View
Loading map...
Additional Information
Community
- Common Areas
- Street Lights
- Playground
- Lawn Maintenance
- Landscape Maintenance
Lot & Land
Tax Information
Interior Details
- Carpet
- Vinyl
- Luxury Vinyl
- Dishwasher
- Disposal
- Refrigerator
- Gas Oven
- Microwave
- Gas Water Heater
- Tankless Water Heater
- 2nd Floor
- Laundry Closet
- Walk-in
- Electric Dryer Hookup
- Washer Hookup
- Laundry Room
- Ceiling Smooth
- Open Floorplan
- Walk-In Closet(s)
- Countertops – Quartz
Parking & Garage
- Attached
- Concrete
- Garage Door Opener
- Driveway
Exterior Features
- Architectural
- Attached
- Concrete
- Garage Door Opener
- Driveway
- Slab
- Patio
- Front Porch
- Stone
- Vinyl Siding
H O A & Association
- Electricity
- Maintenance Grounds
- Street Lights
- Other/See Remarks
Property Overview
- Two
- Craftsman
Utilities & Systems
- Public Sewer
- Central Air
- Electric
- Forced Air
- Natural Gas
- Public
Listing Agent Information
The information is being provided by Greater Greenville MLS. Information deemed reliable but not guaranteed. Information is provided for consumers' personal, non-commercial use, and may not be used for any purpose other than the identification of potential properties for purchase. Copyright 2025 Greater Greenville MLS. All Rights Reserved.


