




$204,900
2033 Hillman Way
Roebuck, SC 29376
About This Property
This Property Has Been Sold
This property sold 16 days ago and is no longer available for purchase.
View active listings in Trenton Place →Discover the perfect balance of affordability and elevated living at Trenton Place, a thoughtfully designed community just minutes from Downtown Spartanburg. USDA eligible! Conveniently located near major employers with easy access to I-26 and I-85, Trenton Place offers unmatched convenience and comfort.
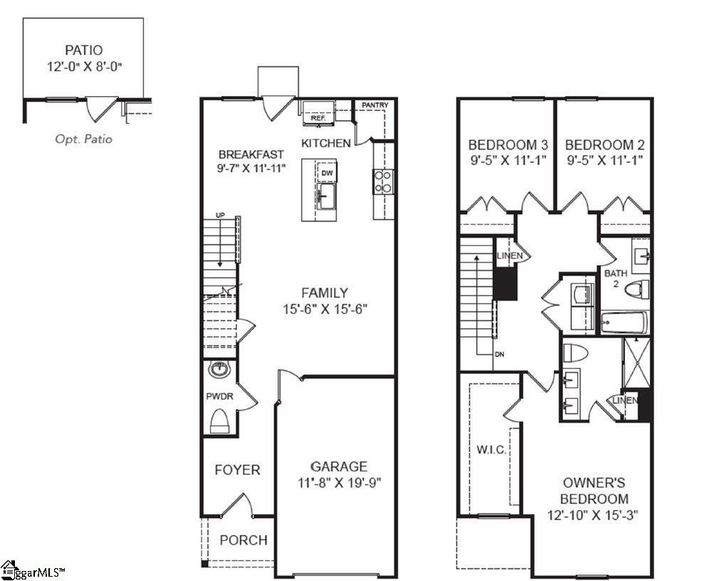
This move in ready, 2-story townhome features an open-concept floor plan with 3 spacious bedrooms, 2.5 bathrooms, and a one car garage. Enjoy modern finishes such as hard surface flooring in the main living areas, elegant quartz countertops, white shaker cabinets, a gas stove, a large kitchen island, a huge corner pantry and included refrigerator.
This home also includes whole house blinds. Step into the primary suite, where you’ll find a beautiful bath with sliding glass shower doors, a dual vanity, and a generous walk-in closet that is a must see. Entertain with ease on your large private rear patio, complete with fencing on each side for privacy – perfect for gatherings and quiet evenings alike.
GVL MLS # 1575753
Quick Facts
Time on Site
4 months ago
Property Type
Residential
Lot Size
2,613 sqft
Price/Sq.Ft.
$131
HOA Fees
$137/mo
Property Details
Schools
Features & Amenities
Features:
- 2 Story Foyer
- Ceiling Smooth
- Countertops-Solid Surface
- Open Floorplan
- Walk-In Closet(s)
Location & Map
Map View
Loading map...
Additional Information
Community
- Common Areas
- Street Lights
- Playground
- Lawn Maintenance
- Landscape Maintenance
Lot & Land
- Corner Lot
Tax Information
Interior Details
- Carpet
- Vinyl
- Luxury Vinyl
- Dishwasher
- Disposal
- Refrigerator
- Gas Oven
- Microwave
- Gas Water Heater
- Tankless Water Heater
- 2nd Floor
- Laundry Closet
- Walk-in
- Electric Dryer Hookup
- Washer Hookup
- Laundry Room
- 2 Story Foyer
- Ceiling Smooth
- Countertops-Solid Surface
- Open Floorplan
- Walk-In Closet(s)
Parking & Garage
- Attached
- Concrete
- Garage Door Opener
- Driveway
Exterior Features
- Architectural
- Wood
- Attached
- Concrete
- Garage Door Opener
- Driveway
- Slab
- Patio
- Front Porch
- Stone
- Vinyl Siding
H O A & Association
- Electricity
- Maintenance Grounds
- Street Lights
- Other/See Remarks
Property Overview
- Two
- Craftsman
Utilities & Systems
- Public Sewer
- Central Air
- Electric
- Heat Pump
- Forced Air
- Natural Gas
- Public
Listing Agent Information
The information is being provided by Greater Greenville MLS. Information deemed reliable but not guaranteed. Information is provided for consumers' personal, non-commercial use, and may not be used for any purpose other than the identification of potential properties for purchase. Copyright 2025 Greater Greenville MLS. All Rights Reserved.
You Might Also Like...
Interested in selling in Trenton Place?


