




$581,900
2084 Fordhill Street
Rock Hill, SC 29732
About This Property
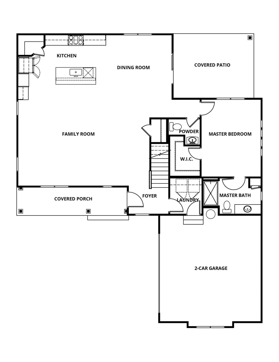
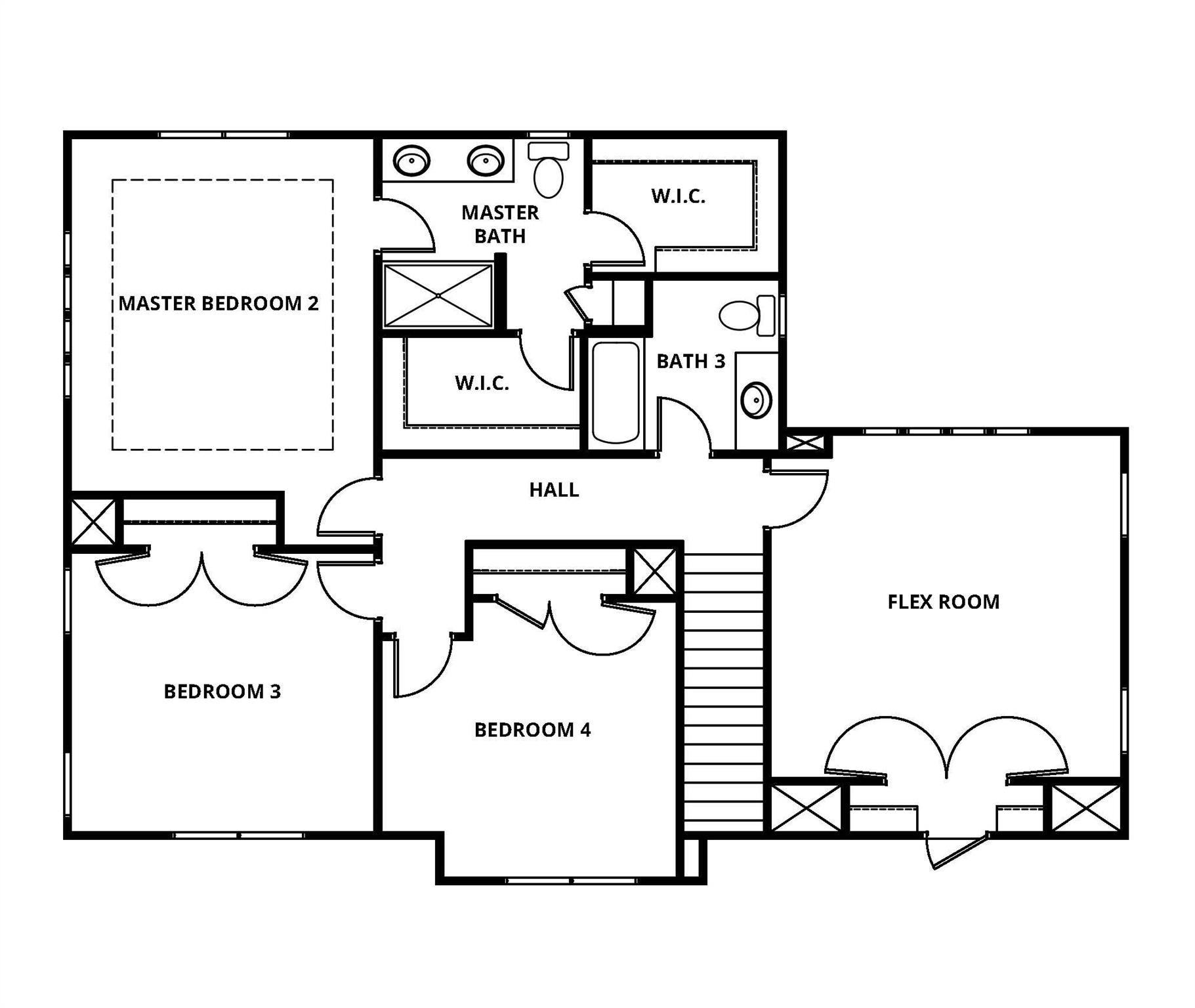
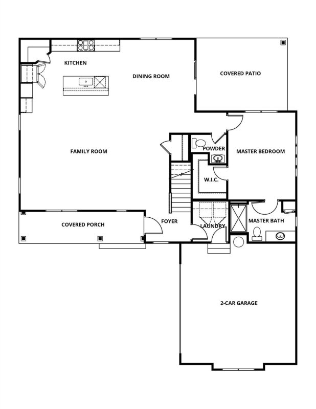
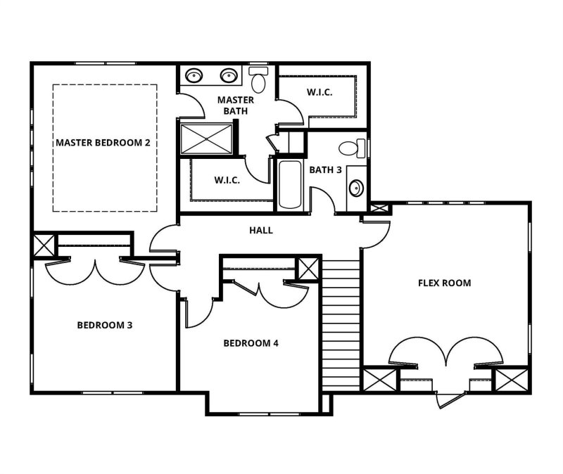
Spacious, open living is what you will find in the Williamsburg floor plan. With a wide array of rooms and spaces, this floor plan is bound to have everything you need! This four-bedroom, three-and-a-half-bath home is truly the home every entertainer dreams of. The chef-inspired kitchen is the main focal point of the first floor. This open kitchen connects to the family room and dining room, allowing you to be close to everything. Tucked in the back you will find a large bedroom with full bath, perfect for the multi-generational family. Need more space downstairs to entertain? No problem, walk through the doors off the dining area, and you can extend your gathering to the covered outdoor living area. Upstairs you will find another Primary bedroom and bath, two large bedrooms and another large room that could also be a bedroom. With so much room, the Williamsburg is one of the most flexible floor plans, with surprises around every corner.
Neighborhood is near York Preparatory Academy. Please ask about our builder incentives!
CAR MLS # 292001497
Quick Facts
Time on Site
3 months ago
Property Type
Residential
Year Built
2025
Price/Sq.Ft.
$242
Property Details
Schools
Features & Amenities
Features:
- Attic Walk In
- Breakfast Bar
- Cable Prewire
- Entrance Foyer
- Kitchen Island
- Open Floorplan
- Pantry
- Storage
- Walk-In Closet(s)
- Walk-In Pantry
Location & Map
Map View
Loading map...
Additional Information
Utilities
- Public Sewer
- Cable Available
- Cable Connected
- Electricity Connected
- Fiber Optics
- Natural Gas
- Phone Connected
- Underground Power Lines
- Underground Utilities
- Wired Internet Available
- City
Lot And Land
Agent Contacts
- Palmetto Park Realty Team Fort Mill: 803.548.6123
Interior Details
- Natural Gas
- Carpet
- Vinyl
- Insulated Door(s)
- Sliding Doors
- Insulated Window(s)
- Window Treatments
- Electric Dryer Hookup
- Laundry Room
- Washer Hookup
- Attic Walk In
- Breakfast Bar
- Cable Prewire
- Entrance Foyer
- Kitchen Island
- Open Floorplan
- Pantry
- Storage
- Walk-In Closet(s)
- Walk-In Pantry
Exterior Features
- Architectural Shingle
- In-Ground Irrigation
- Hardboard Siding
- Stone Veneer
- Covered
- Front Porch
- Rear Porch
Parking And Garage
- Driveway
- Attached Garage
- Garage Door Opener
- Garage Faces Side
Financial Information
Basement And Foundation
- Slab
Zoning And Restrictions
Square Footage And Levels
- Two
Additional C A R Information
IDX information is provided exclusively for consumers' personal, non-commercial use only; it may not be used for any purpose other than to identify prospective properties consumers may be interested in purchasing. Data is deemed reliable but is not guaranteed accurate by the MLS GRID. Use of this site may be subject to an end user license agreement. Based on information submitted to the MLS GRID as of Wed, Mar 11, 2026. All data is obtained from various sources and may not have been verified by broker or MLS GRID. Supplied Open House Information is subject to change without notice. All information should be independently reviewed and verified for accuracy. Properties may or may not be listed by the office/agent presenting the information. Some IDX listings have been excluded from this website. Any use by you of search facilities of data on the site, other than by a consumer looking to purchase real estate, is prohibited. DMCA Notice: Palmetto Park Realty respects the intellectual property rights of others. If you believe that your work has been copied in a way that constitutes copyright infringement, please provide our designated agent with written notice containing the following information: (1) identification of the copyrighted work claimed to have been infringed; (2) identification of the material that is claimed to be infringing; (3) your contact information; (4) a statement that you have a good faith belief that use of the material is not authorized; and (5) a statement that the information in the notification is accurate and you are authorized to act on behalf of the copyright owner. Please send DMCA notices to: [email protected]


