




$732,585
6065 Sourwood Trail
Ridgeville, SC 29472
About This Property
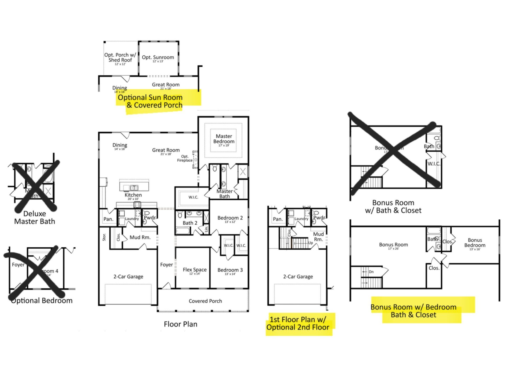
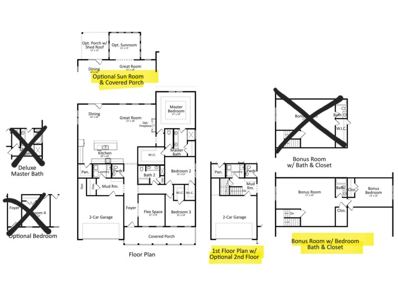
READY IN FEBRUARY! Discover this exceptional single-story home w/ a bonus twist! Situated on a 1.
22 acre lot, this NEW HOME has a 4 Car Garage (attached/detached) w/ a thoughtfully designed layout that blends comfort & style. The inviting living area includes a cozy gas fireplace perfect for chilly evenings. The gourmet kitchen boasts modern appliances, ample cabinetry, & huge island w/ quartz countertops.
The primary suite is a serene retreat with a spacious walk-in closet and a luxurious owner's bath with 5' tile shower and quartz countertops. The highlight of this home is the versatile upstairs bonus room w/ full bath & add'l bedroom. Upgraded cabinets, faucets, & lighting throughout elevate the home's style.
Quick Facts
Time on Site
4 months ago
Property Type
Residential
Year Built
2025
Lot Size
1.22 acres
Property Details
Schools
Features & Amenities
Location & Map
Map View
Loading map...
Additional Information
Lot And Land
Agent Contacts
Green Features
Community & H O A
Room Dimensions
Property Details
Exterior Features
Interior Features
Systems & Utilities
Financial Information
Additional Information
- IDX
- -80.342964
- 33.067217
- Slab


