




$254,999
Welcome to Powder Branch: New 3 Bed Townhome in Charming Reidville, SC!
Reidville, SC 29375
About This Property
This Property Has Been Sold
This property sold 7 months ago and is no longer available for purchase.
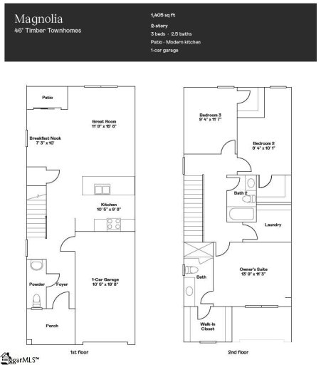
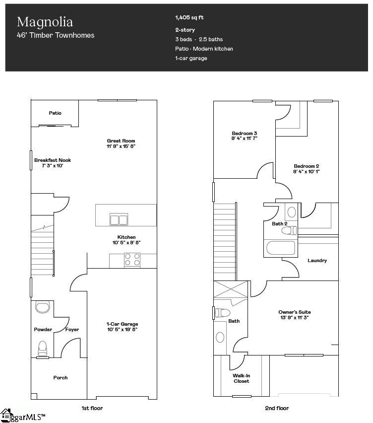
View active listings in Powder Branch →Welcome to Powder Branch, one of Lennar's newest townhouse communities located in the charming town of Reidville, South Carolina! We are excited to introduce you to the Magnolia Floorplan - a delightful 3-bedroom, 2.5-bathroom, 1403 square foot, 2-story townhouse that epitomizes modern craftsman style living.
Upon entering, you'll be greeted by beautiful crisp white shaker cabinets, a stylish tile backsplash, and stainless steel appliances, including a gas stove. The large quartz island is perfect for gathering with family and friends, making it an ideal spot for food, fun, and lively interaction. The open concept design ensures that entertaining is a breeze, as the kitchen seamlessly flows into the breakfast room and spacious great room.
Imagine sipping your morning coffee on your back covered patio, enjoying the tranquility of your new home. Upstairs, you'll find a generous master bedroom with a walk-in shower en suite and a tankless gas water heater. Additionally, this charming home offers two other bedrooms, a full bath, and a convenient laundry room.
GVL MLS # 1558588
Quick Facts
Time on Site
10 months ago
Property Type
Residential
Year Built
2025
Lot Size
3,998 sqft
Price/Sq.Ft.
$181
HOA Fees
$110/mo
Property Details
Schools
Features & Amenities
Features:
- Ceiling Smooth
- Walk-In Closet(s)
- Countertops – Quartz
Location & Map
Map View
Loading map...
Additional Information
Lot & Land
Tax Information
Interior Details
- Carpet
- Luxury Vinyl
- Gas Cooktop
- Dishwasher
- Gas Oven
- Microwave
- Tankless Water Heater
- 2nd Floor
- Ceiling Smooth
- Walk-In Closet(s)
- Countertops – Quartz
Parking & Garage
- Attached
- Paved
Exterior Features
- Composition
- Attached
- Paved
- Slab
- Patio
- Brick Veneer
- Vinyl Siding
H O A & Association
- Common Area Ins.
- Maintenance Grounds
- Street Lights
- By-Laws
Property Overview
- Two
- Traditional
Utilities & Systems
- Public Sewer
- Central Air
- Electric
- Natural Gas
- Underground Utilities
- Public
Listing Agent Information
The information is being provided by Greater Greenville MLS. Information deemed reliable but not guaranteed. Information is provided for consumers' personal, non-commercial use, and may not be used for any purpose other than the identification of potential properties for purchase. Copyright 2025 Greater Greenville MLS. All Rights Reserved.
You Might Also Like...
Interested in selling in Powder Branch?


