




$301,499
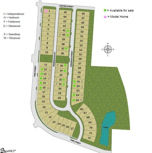
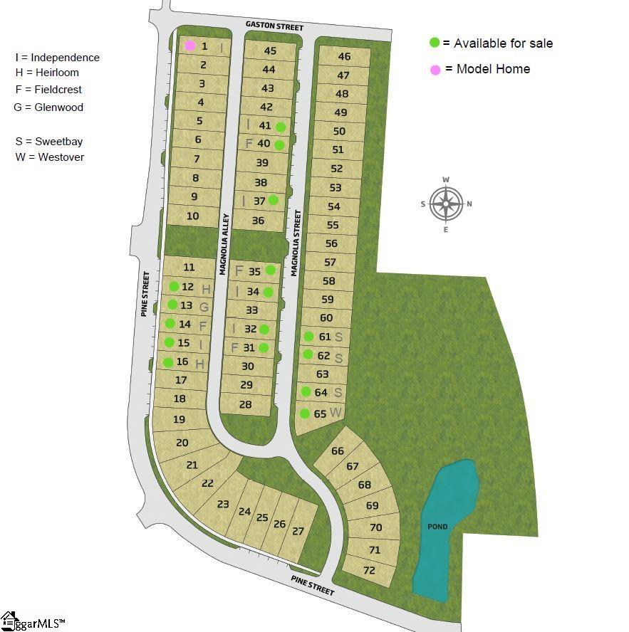
369 Pine Street lot 16
Reidville, SC 29375
About This Property
This Property Has Been Sold
This property sold 3 years ago and is no longer available for purchase.
View active listings in Magnolia Place →We are offering $10,000 towards closing costs, home price or interest rate points with our preferred lender and closing attorney. (This is a limited time promotion, & can change. Please check w.
sales agent) Nestled in the heart of Spartanburg County, SC. This community is conveniently located in the greater Greenville area with close proximity to major employers, interstates and numerous outdoor recreation activities. Magnolia Place is also adjacent to Reidville Elementary and less than a mile from Tyger River Sports Complex.
This new two-story home design combines comfort and elegance. At the heart of the first floor stands a family room with an optional fireplace for gatherings with family and friends. The space combines with the kitchen and breakfast room in an open-plan layout.
GVL MLS # 1484908
Quick Facts
Time on Site
3 years ago
Property Type
Residential
Year Built
2022
Lot Size
4,399 sqft
HOA Fees
$585/yr
Property Details
Schools
Features & Amenities
Features:
- High Ceilings
- Ceiling Smooth
- Tray Ceiling(s)
- Walk-In Closet(s)
- Countertops – Quartz
- Pantry
Location & Map
Map View
Loading map...
Additional Information
Community
- Common Areas
- Sidewalks
- Vehicle Restrictions
Lot & Land
- 1/2 Acre or Less
- Sidewalk
Tax Information
Interior Details
- Vinyl
- Dishwasher
- Free-Standing Gas Range
- Microwave
- Microwave-Convection
- Electric Water Heater
- 2nd Floor
- Laundry Room
- High Ceilings
- Ceiling Smooth
- Tray Ceiling(s)
- Walk-In Closet(s)
- Countertops – Quartz
- Pantry
Parking & Garage
- Detached
- Paved
- Side/Rear Entry
Exterior Features
- Architectural
- Detached
- Paved
- Side/Rear Entry
- Slab
- Hardboard Siding
H O A & Association
- By-Laws
Property Overview
- Two
- Traditional
- Charleston
Utilities & Systems
- Public Sewer
- Central Air
- Electric
- Natural Gas
- Damper Controlled
- Public
Listing Agent Information
The information is being provided by Greater Greenville MLS. Information deemed reliable but not guaranteed. Information is provided for consumers' personal, non-commercial use, and may not be used for any purpose other than the identification of potential properties for purchase. Copyright 2025 Greater Greenville MLS. All Rights Reserved.
You Might Also Like...
Interested in selling in Magnolia Place?


