




Rural Northern Berkeley County
1/12
$40k
Rural Northern Berkeley County
$40k
$40,000
3185 Highway 45
Pineville, SC 29468
1Beds
0Baths
1975Built
About This Property
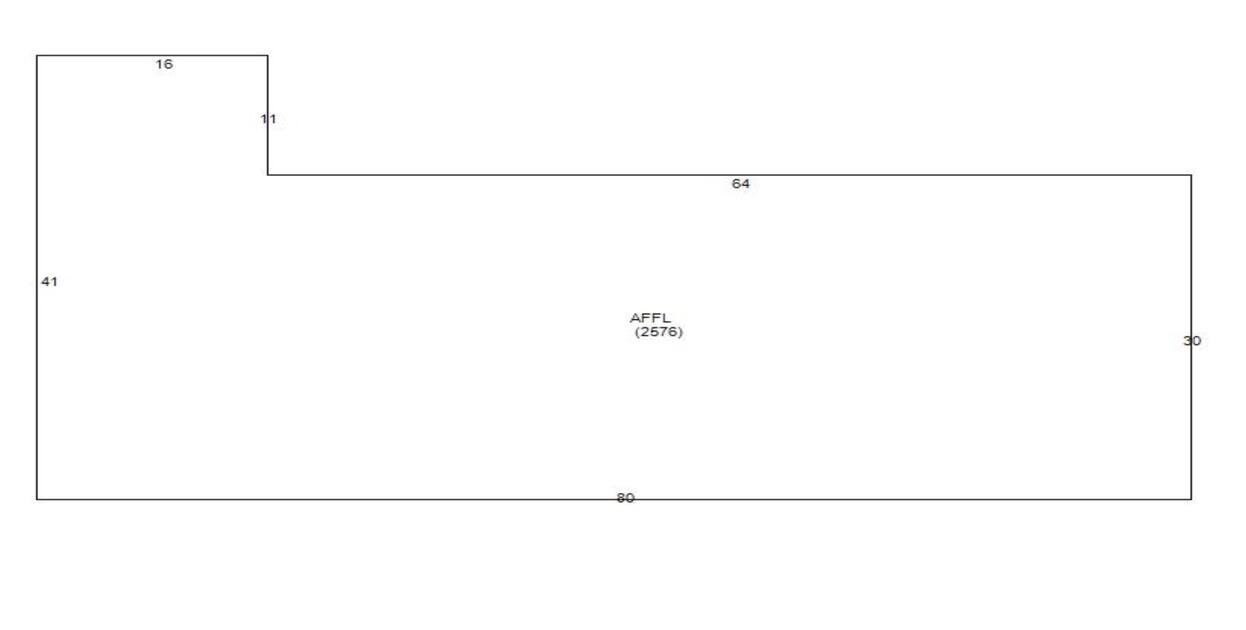
SELLER FINANCING AVAILABLE!2,576 SqFt Block Warehouse in Berkeley County on 1/3 of an Acre Lot. Zoned RNC (rural and neighborhood commercial) which allows for both commercial and residential development.
Septic and well on site. Condition is unknown. X flood zone.
Property is being sold as is. This area is exploding with development and industry. This would make an excellent addition to your portfolio as Berkeley County continues to grow.
Quick Facts
Time on Site
4 months ago
Property Type
Residential
Year Built
1975
Lot Size
14,374 sqft
Property Details
Bedrooms:
1
Total Area:
2,576 SqFt
Sub-Type:
SingleFamilyResidence
Stories:
1
Schools
Elementary:
J K Gourdin
Middle:
St. Stephen
High:
Timberland
School assignments may change. Contact the school district to confirm.
Features & Amenities
Location & Map
Map View
Loading map...
Additional Information
Lot And Land
Lot Features
0 - .5 Acre, Corner Lot
Lot Size Area
0.33
Lot Size Acres
0.33
Lot Size Units
Acres
Agent Contacts
List Agent Mls Id
30262
List Office Name
Carolina One Real Estate
List Office Mls Id
1190
List Agent Full Name
Peter Kouten
Room Dimensions
Bathrooms Half
1
Property Details
Directions
Hwy 52 Towards St Stephen. Left Onto Hwy 45. Property Will Be On The Left.
M L S Area Major
75 - Cross, St.Stephen, Bonneau, Rural Berkeley Cty
Tax Map Number
0130003001
County Or Parish
Berkeley
Property Sub Type
Single Family Detached
Architectural Style
Live/Work
Construction Materials
Block
Exterior Features
Roof
Metal
Other Structures
No
Systems & Utilities
Sewer
Septic Tank
Water Source
Well
Financial Information
Listing Terms
Cash, Owner Will Carry
Additional Information
Stories
1
Cooling Y N
false
Feed Types
- IDX
Heating Y N
false
Listing Id
25029654
Mls Status
Active
Listing Key
f7aabdd5ffe79dc07b5ab4c9bc883f31
Coordinates
- -80.10141
- 33.435788
Fireplace Y N
false
Co List Agent Key
b6cc6edddee13077cf82f0360368b2a8
Standard Status
Active
Co List Office Key
3346b640bf18c0f60049a03eb1438f3f
Source System Key
20251101134117479053000000
Co List Agent Mls Id
36097
Co List Office Name
Carolina One Real Estate
Building Area Units
Square Feet
Co List Office Mls Id
1190
Foundation Details
- Slab
New Construction Y N
false
Property Attached Y N
false
Co List Agent Full Name
John Kouten
Originating System Name
CHS Regional MLS
Special Listing Conditions
Handy Man Special
Co List Agent Preferred Phone
843-810-4171
Showing & Documentation
Internet Address Display Y N
true
Internet Consumer Comment Y N
true
Internet Automated Valuation Display Y N
true

