




$308,160
617 Silver Fir Street
Piedmont, SC 29673
About This Property
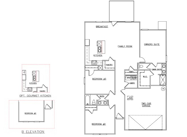
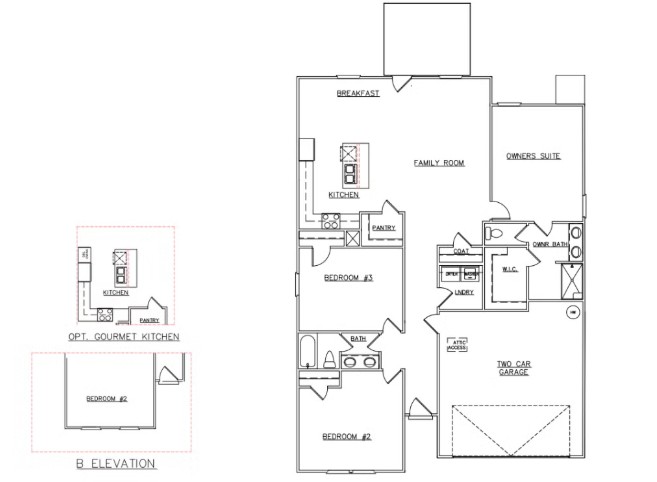
The Burton plan provides everything you need, all on one level. The flow of this home is wonderful. Two secondary bedrooms and full bath towards the front, with the master suite tucked away towards the back.
The open family room features a recessed fireplace and loads of natural light. The kitchen has wonderful countertop and cabinet space. If that isn’t enough, the large pantry will certainly do the trick.
All countertops in the kitchen and both bathrooms are granite. The kitchen also has an island for additional sitting. The master suite’s full bath has a large tiled shower with bench.
WUM MLS # 1149503224
Quick Facts
Time on Site
3 months ago
Property Type
Residential
Year Built
2026
Lot Size
6,098 sqft
Property Details
Schools
Features & Amenities
Location & Map
Map View
Loading map...
Additional Information
Lot & Land
- Level
- NotInSubdivision
- OutsideCityLimits
Community & H O A
- Playground
- Sidewalks
Tax Information
Parking & Garage
- Attached
- Garage
- Driveway
Property Details
Exterior Features
- Architectural
- Shingle
- Brick
- CementSiding
- VinylSiding
Interior Features
- Dishwasher
- ElectricOven
- ElectricRange
- ElectricWaterHeater
- Disposal
- Microwave
- PlumbedForIceMaker
- DualSinks
- GraniteCounters
- HighCeilings
- BathInPrimaryBedroom
- MainLevelPrimary
- PullDownAtticStairs
- SmoothCeilings
- ShowerOnly
- CableTv
- WalkInClosets
- WalkInShower
Systems & Utilities
- CentralAir
- Electric
- Central
- Electric
- ElectricityAvailable
- PhoneAvailable
- SewerAvailable
- WaterAvailable
- CableAvailable
- UndergroundUtilities
Listing Agent Information
This information is deemed reliable, but not guaranteed. Neither, the Western Upstate Association of REALTORS®, Inc. or Western Upstate Multiple Listing Service of South Carolina Inc., nor the listing broker, nor their agents or subagents are responsible for the accuracy of the information. The buyer is responsible for verifying all information. This information is provided by the Western Upstate Association of REALTORS®, Inc. and Western Upstate Multiple Listing Service of South Carolina, Inc. for use by its members and is not intended for the use for any other purpose. Information is provided for consumers' personal, non-commercial use, and may not be used for any purpose other than the identification of potential properties for purchase. The data relating to real estate for sale on this Web site comes in part from the Broker Reciprocity Program of the Western Upstate Association of REALTORS®, Inc. and the Western Upstate Multiple Listing Service, Inc.


