


$330,900
6 Hidden Lake Court
Piedmont, SC 29673
About This Property
This Property Has Been Sold
This property sold 10 years ago and is no longer available for purchase.
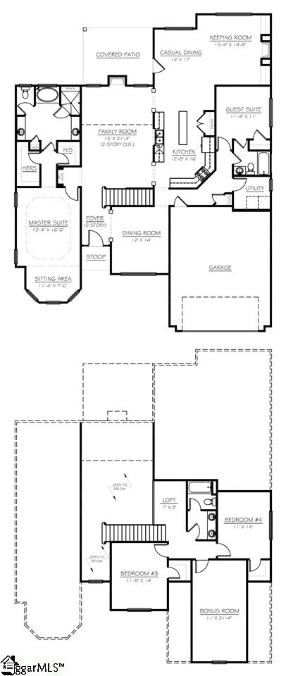
View active listings in Ashmore Lakes →Buyer Incentive offered for a limited time when using recommended Lender/Attorney! This gorgeous 2 story home is being built in the Simpsonville area! Exterior features include a full 4 zone Irrigation System, Cement Fiber Siding, and 2 Car Garage.
Interior features 7 arched doorways, oil rubbed bronze faucets, bath accessories and door hardware, upgraded paint package, 6" baseboards, wrought iron stair spindles, plus upgraded carpet and crown molding on entire first floor. Hardwoods run throughout the entire main level including the stairs and loft, plus ceramic tile in laundry room and all baths. Home also features a Bonus Room and a Keeping Room with built in bookshelves around fireplace, plus a Formal and Casual Dining Room.
Kitchen has Granite Countertops, Stainless Steel Appliances, Shaker Cabinets and Family Room has a separate Gas Log Fireplace with Stone Raised Hearth. Master Bedroom features a Bay Window sitting area and a pan ceiling with crown molding, plus double sinks, cultured marble vanities, and ceramic tile shower with separate garden tub and his and her closets. Homesite faces the morning sun as it climbs over Ashmore Lake.
GVL MLS # 1303878
Quick Facts
Time on Site
11 years ago
Property Type
Residential
Year Built
2015
Lot Size
27,007 sqft
HOA Fees
$550/yr
Property Details
Schools
Features & Amenities
Features:
- High Ceilings
- Ceiling Fan(s)
- Vaulted Ceiling(s)
- Ceiling Smooth
- Granite Counters
- Countertops-Solid Surface
Location & Map
Map View
Loading map...
Additional Information
Community
- Common Areas
- Gated
- Street Lights
Lot & Land
- Sprklr In Grnd-Full Yard
Tax Information
Interior Details
- Carpet
- Ceramic Tile
- Wood
- Dishwasher
- Disposal
- Microwave
- Electric Cooktop
- Electric Oven
- Gas Water Heater
- 1st Floor
- Walk-in
- Laundry Room
- High Ceilings
- Ceiling Fan(s)
- Vaulted Ceiling(s)
- Ceiling Smooth
- Granite Counters
- Countertops-Solid Surface
- Gas Log
- Ventless
Parking & Garage
- Attached
- Paved
- Garage Door Opener
Exterior Features
- Architectural
- Attached
- Paved
- Garage Door Opener
- Crawl Space
- Deck
- Concrete
- Stone
H O A & Association
Property Overview
- Two
- Traditional
Utilities & Systems
- Septic Tank
- Central Air
- Forced Air
- Natural Gas
- Underground Utilities
- Cable Available
- Public
Listing Agent Information
The information is being provided by Greater Greenville MLS. Information deemed reliable but not guaranteed. Information is provided for consumers' personal, non-commercial use, and may not be used for any purpose other than the identification of potential properties for purchase. Copyright 2025 Greater Greenville MLS. All Rights Reserved.
You Might Also Like...
Interested in selling in Ashmore Lakes?

