

$435,787
597 Camden Drive
Piedmont, SC 29673
About This Property
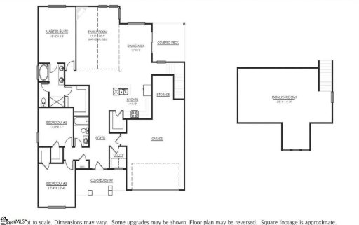
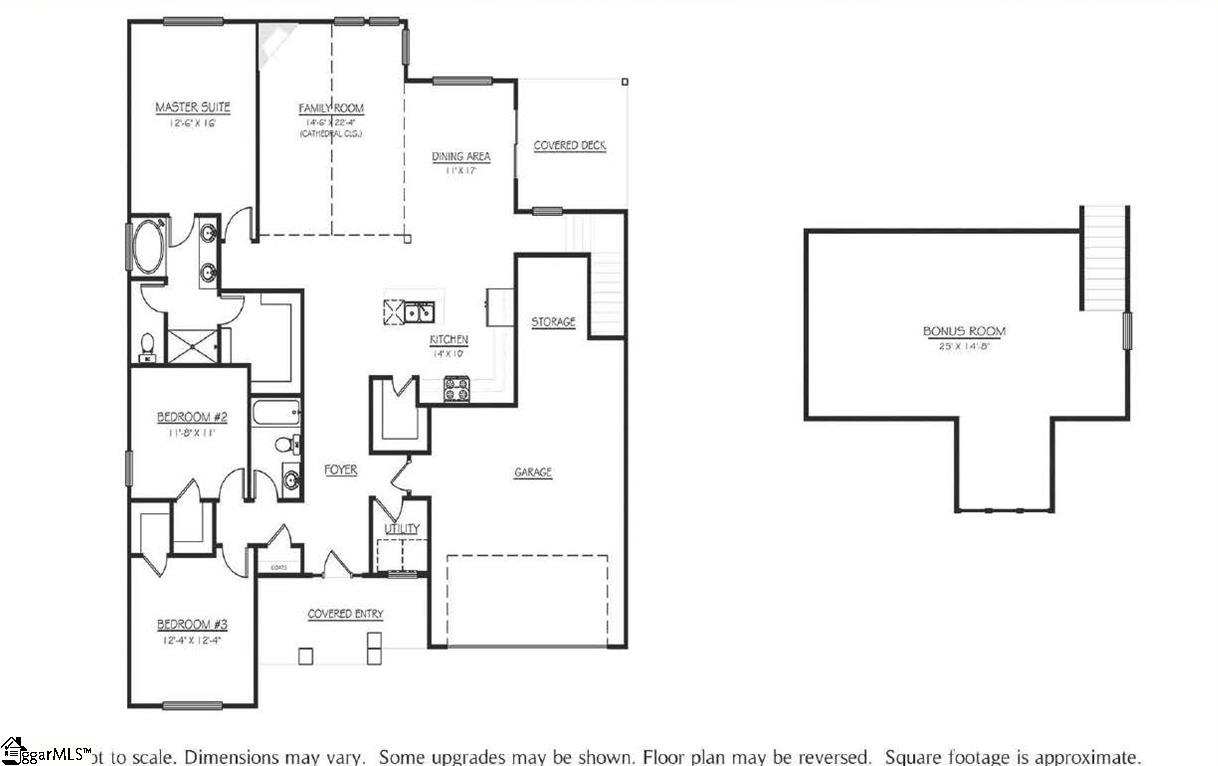
The Oakland B floor plan offers a 1.5-story design that combines open living with clearly defined spaces for comfort and functionality. A spacious foyer welcomes you into the home, leading into an open layout that maintains distinct separation between the family room, dining room, and kitchen, creating a natural flow for everyday living and entertaining.
The main living areas are finished with granite countertops and luxury vinyl plank flooring, providing both durability and modern appeal. The primary suite is located on the main level, offering convenience and privacy, while the layout is thoughtfully designed to maximize livability. A covered porch extends the living space outdoors, ideal for relaxing or entertaining.
Upstairs, a large bonus room over the garage provides flexible space, perfect for a home theater, media room, or additional living area. Located in the established Marion Grove subdivision in Greenville, this ready-to-build new construction offers the freedom of NO HOA in a convenient in-town location. One of six homes currently being built, the Oakland B features a 2-car garage and approximate home dimensions of 50 ft wide by 58 ft deep, with an estimated construction timeline of approximately 8 months from contract execution.
GVL MLS # 1582671
Quick Facts
Time on Site
2 months ago
Property Type
Residential
Year Built
2006
Lot Size
18,295 sqft
Price/Sq.Ft.
$193
Property Details
Schools
Features & Amenities
Features:
- High Ceilings
- Ceiling Smooth
- Granite Counters
- Soaking Tub
- Walk-In Closet(s)
- Countertops – Quartz
- Pantry
Location & Map
Map View
Loading map...
Additional Information
Lot & Land
- 1/2 Acre or Less
- Sprklr In Grnd-Partial Yd
Tax Information
Interior Details
- Carpet
- Vinyl
- Luxury Vinyl
- Dishwasher
- Free-Standing Electric Range
- Microwave
- Gas Water Heater
- 1st Floor
- Electric Dryer Hookup
- Laundry Room
- High Ceilings
- Ceiling Smooth
- Granite Counters
- Soaking Tub
- Walk-In Closet(s)
- Countertops – Quartz
- Pantry
- Gas Log
Parking & Garage
- Attached
- Paved
Exterior Features
- Architectural
- Attached
- Paved
- Slab
- Patio
- Front Porch
- Rear Porch
- Vinyl Siding
Property Overview
- One and One Half
- Patio
- Craftsman
Utilities & Systems
- Public Sewer
- Electric
- Natural Gas
- Public
Listing Agent Information
The information is being provided by Greater Greenville MLS. Information deemed reliable but not guaranteed. Information is provided for consumers' personal, non-commercial use, and may not be used for any purpose other than the identification of potential properties for purchase. Copyright 2025 Greater Greenville MLS. All Rights Reserved.


