

$357,812
593 Camden Drive
Piedmont, SC 29673
About This Property
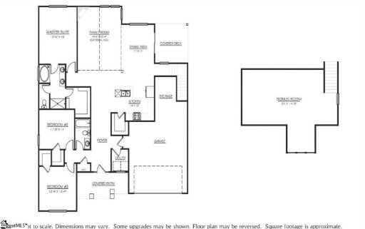
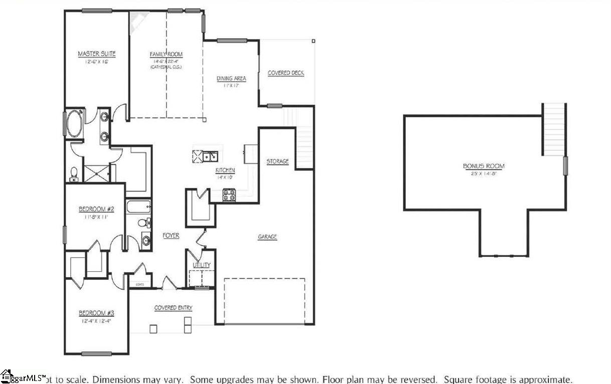
The Oakland A floor plan offers a single-story design that combines open living with well-defined spaces for comfort and functionality. A spacious foyer welcomes you into the home, setting the stage for open living areas while maintaining clear separation between the family room, dining room, and kitchen. The main living areas are finished with granite countertops, a raised fireplace with stone to the mantle, luxury vinyl plank flooring, creating a durable and stylish environment for everyday living.
The primary suite is located on the main level, offering convenience and privacy. A covered porch extends the living space outdoors, ideal for relaxing or entertaining. This plan features a 3-car garage configuration, with a traditional two-car garage and an additional single bay staggered behind, perfect for a workshop, storage, or hobby space.
Buyers may also choose to finish this area for an additional 183 sq ft, increasing the total living space to approximately 1,966 sq ft. Located in the established Marion Grove subdivision in Greenville, this ready-to-build new construction offers the freedom of NO HOA in a convenient in-town location. One of six homes currently being built, the Oakland A features approximate home dimensions of 50 ft wide by 58 ft deep, with an estimated construction timeline of approximately 8 months from contract execution.
GVL MLS # 1582674
Quick Facts
Time on Site
2 months ago
Property Type
Residential
Year Built
2006
Lot Size
17,424 sqft
Price/Sq.Ft.
$182
Property Details
Schools
Features & Amenities
Features:
- High Ceilings
- Ceiling Smooth
- Granite Counters
- Soaking Tub
- Walk-In Closet(s)
- Countertops – Quartz
- Pantry
Location & Map
Map View
Loading map...
Additional Information
Lot & Land
- 1/2 Acre or Less
- Sprklr In Grnd-Full Yard
Tax Information
Interior Details
- Carpet
- Ceramic Tile
- Vinyl
- Luxury Vinyl
- Dishwasher
- Free-Standing Electric Range
- Microwave
- Gas Water Heater
- 1st Floor
- Electric Dryer Hookup
- Laundry Room
- High Ceilings
- Ceiling Smooth
- Granite Counters
- Soaking Tub
- Walk-In Closet(s)
- Countertops – Quartz
- Pantry
- Gas Log
Parking & Garage
- Attached
- Paved
Exterior Features
- Architectural
- Attached
- Paved
- Slab
- Patio
- Front Porch
- Rear Porch
- Vinyl Siding
Property Overview
- One
- Patio
- Craftsman
Utilities & Systems
- Public Sewer
- Electric
- Natural Gas
- Public
Listing Agent Information
The information is being provided by Greater Greenville MLS. Information deemed reliable but not guaranteed. Information is provided for consumers' personal, non-commercial use, and may not be used for any purpose other than the identification of potential properties for purchase. Copyright 2025 Greater Greenville MLS. All Rights Reserved.


