




$345,340
Move-In Ready Piedmont Gem: Flex Room, Warranties & Blinds Included
Piedmont, SC 29673
About This Property
This Property Has Been Sold
This property sold 5 months ago and is no longer available for purchase.
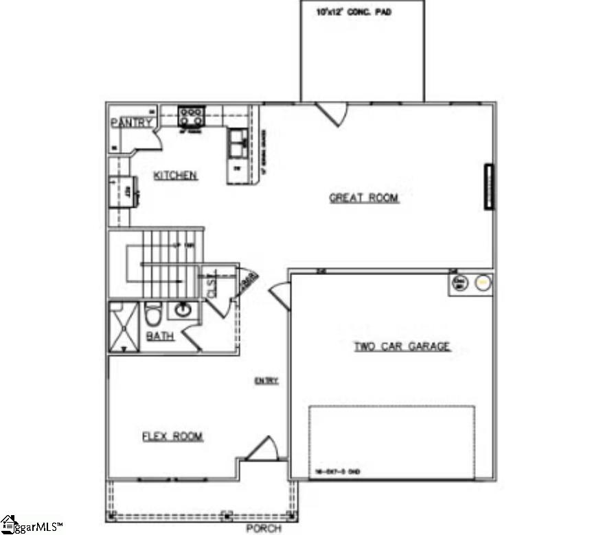
View active listings in Evergreen Hills →The Jodeco is its open concept, is one of Liberty's most sought-after plans. Downstairs features a flex room that can be used as an office/study or 5th bedroom. The main floor has 9' ceilings, recessed electric fireplace, ceiling fan, and blinds included through the house.
The thoughtfully arranged kitchen offers loads of cabinet and granite counter space, walk-in pantry, farmer's sink with pull-down sprayer faucet, cup-wash station, and stool bar. The owner's suite has a walk-in closet, full bath with double vessel sinks, 3 LED mirrors with anti-fog capabilities, stand-alone garden tub, separate tiled shower with built-in bench, tile flooring, and smart toilet. Granite counters in all bathrooms, LED lighting, Smart Home System features, UV air & surface treatment for HVAC, and the garage is prewired for electric cars!
1-yr Builder's & 10-yr Structural New Home Warranty. USDA 100% financing available.
GVL MLS # 1549632
Quick Facts
Time on Site
1 year ago
Property Type
Residential
Year Built
2024
Lot Size
6,098 sqft
Price/Sq.Ft.
$147
HOA Fees
$500/yr
Property Details
Schools
Features & Amenities
Features:
- High Ceilings
- Ceiling Smooth
- Granite Counters
- Open Floorplan
- Soaking Tub
- Walk-In Closet(s)
- Pantry
- Radon System
Location & Map
Map View
Loading map...
Additional Information
Community
- Playground
- Sidewalks
Lot & Land
- 1/2 Acre or Less
Tax Information
Interior Details
- Carpet
- Vinyl
- Dishwasher
- Other
- Electric Oven
- Microwave
- Electric Water Heater
- 2nd Floor
- Walk-in
- Electric Dryer Hookup
- Washer Hookup
- Laundry Room
- High Ceilings
- Ceiling Smooth
- Granite Counters
- Open Floorplan
- Soaking Tub
- Walk-In Closet(s)
- Pantry
- Radon System
- Ventless
Parking & Garage
- Attached
- Concrete
Exterior Features
- Composition
- Attached
- Concrete
- Slab
- Patio
- Front Porch
- Brick Veneer
- Hardboard Siding
- Vinyl Siding
H O A & Association
- Electricity
- Other/See Remarks
- By-Laws
Property Overview
- Two
- Patio
- Traditional
- Craftsman
Utilities & Systems
- Central Air
- Electric
- Heat Pump
- Electric
- Heat Pump
- Sewer Available
- Water Available
- Cable Available
Listing Agent Information
The information is being provided by Greater Greenville MLS. Information deemed reliable but not guaranteed. Information is provided for consumers' personal, non-commercial use, and may not be used for any purpose other than the identification of potential properties for purchase. Copyright 2025 Greater Greenville MLS. All Rights Reserved.
You Might Also Like...
Interested in selling in Evergreen Hills?

