




$384,900
403 Rocky Water Drive Lot 14
Piedmont, SC 29673
About This Property
This Property Has Been Sold
This property sold 10 years ago and is no longer available for purchase.
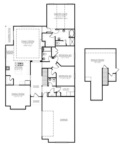
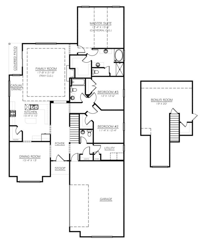
View active listings in The Enclave At River Reserve →CONSTRUCTION WELL UNDER WAY AND HEADED FOR MOVE IN READY!!!! Your Courtyard Driveway safely caresses you as you make ready to enter this beautiful Beaumont Home filled with perfection for those looking for that “just right” space in a low maintenance place. Feel your feet float upon warm hardwoods throughout, while your eyes softly enjoy the privacy of your ten foot tall Foyer boasting wrought iron spindled railing enclosing the Oak Wooden Treads that lead you to the spacious Bonus Room on top.
Stroll into your Great Room to discover the natural fireplace having stone accents from floor to Coffered Ceiling only to boldly interrupted by the Hand Crafted Mantle. Turn around and enjoy your wooded floors, even more, as they carry you into your spacious Kitchen having many Cabinets and a wonderful Pantry. Your home has ten foot ceilings throughout the first floor with one wonderful exception…the cathedral that is your Master Bedroom Ceiling stands fourteen feet from floor to ceiling.
Enjoy your Master Bedroom privacy as it is well tucked away from the Secondary Bedrooms. As a member of our Heritage Collection, your Beaumont has been treated with Hardwoods, Ceramic Tiles, Granite Countertops and much, much more. A glance down South River Bluff lets you know you are only moments away from our Saluda River Nature Trail and the many anticipated gatherings at the future River House.
WUM MLS # 425652454
Quick Facts
Time on Site
10 years ago
Property Type
Residential
Year Built
2016
Price/Sq.Ft.
$139
Property Details
Schools
Features & Amenities
Location & Map
Address
403 Rocky Water Drive Lot 14, Piedmont, SC 29673
Community
The Enclave At River Reserve
Map View
Loading map...
Additional Information
Lot & Land
- CityLot
- Subdivision
Community & H O A
- CommonGroundsArea
- Gated
Tax Information
Parking & Garage
- Attached
- Garage
- Driveway
- GarageDoorOpener
Property Details
- GatedCommunity
- SmokeDetectors
Exterior Features
- Architectural
- Shingle
- FrontPorch
- Porch
- Screened
- Brick
- CementSiding
- Stone
- SprinklerIrrigation
- Porch
Interior Features
- Carpet
- CeramicTile
- Hardwood
- Dishwasher
- ElectricOven
- ElectricRange
- Disposal
- GasWaterHeater
- Microwave
- Refrigerator
- BreakfastRoomNook
- BonusRoom
- DiningRoom
- Laundry
- TrayCeilings
- CeilingFans
- CathedralCeilings
- CentralVacuum
- DualSinks
- Fireplace
- GraniteCounters
- GardenTubRomanTub
- BathInPrimaryBedroom
- MainLevelPrimary
- SmoothCeilings
- SolidSurfaceCounters
- SeparateShower
- CableTv
- VaultedCeilings
- WalkInClosets
- WalkInShower
- BreakfastArea
Systems & Utilities
- CentralAir
- ForcedAir
- ForcedAir
- NaturalGas
- ElectricityAvailable
- NaturalGasAvailable
- PhoneAvailable
- SewerAvailable
- CableAvailable
- UndergroundUtilities
Listing Agent Information
This information is deemed reliable, but not guaranteed. Neither, the Western Upstate Association of REALTORS®, Inc. or Western Upstate Multiple Listing Service of South Carolina Inc., nor the listing broker, nor their agents or subagents are responsible for the accuracy of the information. The buyer is responsible for verifying all information. This information is provided by the Western Upstate Association of REALTORS®, Inc. and Western Upstate Multiple Listing Service of South Carolina, Inc. for use by its members and is not intended for the use for any other purpose. Information is provided for consumers' personal, non-commercial use, and may not be used for any purpose other than the identification of potential properties for purchase. The data relating to real estate for sale on this Web site comes in part from the Broker Reciprocity Program of the Western Upstate Association of REALTORS®, Inc. and the Western Upstate Multiple Listing Service, Inc.
You Might Also Like...
Interested in selling in The Enclave At River Reserve?


