


$314,390
275 Fair Cross Circle
About This Property
This Property Has Been Sold
This property sold 2 months ago and is no longer available for purchase.
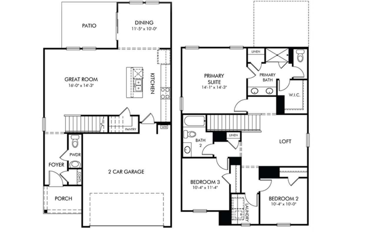
View active listings in Pleasant Brook →Brand new, energy-efficient home available by Oct 2025! Prep dinner at the kitchen island while catching up with guests in the open-concept living area. Upstairs, the loft makes an ideal media room.
Across the hall, a spacious walk-in closet and dual-sink ensuite bath complement the primary suite. Now selling in Piedmont, our single-family homes offer energy-efficient features, five different floorplan options, a full suite of new Whirlpool® appliances and whole home blinds. Each of our homes is built with innovative, energy-efficient features designed to help you enjoy more savings, better health, real comfort and peace of mind.
SPN MLS # 329747
Quick Facts
Time on Site
4 months ago
Property Type
Residential
Year Built
2025
Lot Size
5,227 sqft
Price/Sq.Ft.
$180
Property Details
Schools
Features & Amenities
Location & Map
Map View
Loading map...
Additional Information
Basement
Lot & Land
- Level
- Some Trees
Primary Suite
- Bath - Full
- Shower Only
- Walk-in Closet
Interior Details
- Carpet
- Ceramic Tile
- Vinyl
- Dishwasher
- Disposal
- Dryer
- Microwave
- Free-Standing Range
- Refrigerator
- Washer
- Attic Stairs Pulldown
- Walk-In Closet(s)
- Ceiling - Smooth
- Solid Surface Counters
New Construction
Parking & Garage
Exterior Features
- Composition
- Slab
- Vinyl Siding
- Patio
H O A & Association
- Trash
Property Overview
- Two
- Craftsman
Utilities & Systems
- Public Sewer
- Central Air
- Available
