




$289,990
Spacious New Construction in Piedmont's Evergreen Hills - Clean Air!
Piedmont, SC 29673
About This Property
This Property Has Been Sold
This property sold 5 months ago and is no longer available for purchase.
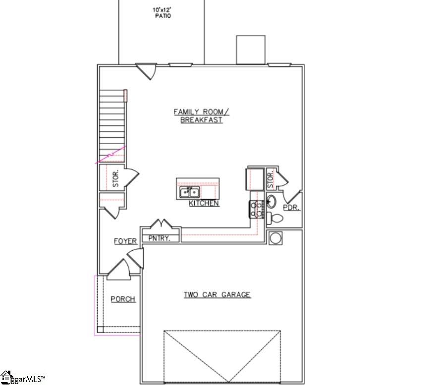
View active listings in Evergreen Hills →The Sierra sets the scene for family or holiday gatherings. Walking in you notice the 9' ceilings allowing for an easy flow open concept from the family room to the dining area. The kitchen provides you with plenty of 42" cabinets and granite countertops, plus an island and elegant pendant lighting.
The large family room offers a recessed electric fireplace to enjoy all year round. Upstairs you ll find the 3 bedrooms are separated from the Owner's suite. The Owner's suite boasts a beautiful ensuite bathroom with tile floors, standalone soaker tub and separate tile shower with bench.
Plus three LED-anti fog-Bluetooth compatible mirrors over the double-vanity vessel sinks. Several Smart Home features are included along with Ultravation HVAC technology helping to provide continuous clean air. The back patio measures in a 10x12.
GVL MLS # 1536451
Quick Facts
Time on Site
2 years ago
Property Type
Residential
Year Built
2024
Lot Size
7,405 sqft
Price/Sq.Ft.
$151
HOA Fees
$500/yr
Property Details
Schools
Features & Amenities
Features:
- High Ceilings
- Ceiling Fan(s)
- Ceiling Smooth
- Granite Counters
- Walk-In Closet(s)
- Pantry
- Radon System
Location & Map
Map View
Loading map...
Additional Information
Community
- Playground
Lot & Land
- 1/2 Acre or Less
Tax Information
Interior Details
- Carpet
- Vinyl
- Dishwasher
- Other
- Electric Cooktop
- Electric Oven
- Microwave
- Electric Water Heater
- 2nd Floor
- Walk-in
- Laundry Room
- High Ceilings
- Ceiling Fan(s)
- Ceiling Smooth
- Granite Counters
- Walk-In Closet(s)
- Pantry
- Radon System
- Ventless
Parking & Garage
- Attached
- Concrete
- Driveway
Exterior Features
- Composition
- Attached
- Concrete
- Driveway
- Slab
- Patio
- Brick Veneer
- Hardboard Siding
- Vinyl Siding
H O A & Association
- Other/See Remarks
- By-Laws
Property Overview
- Two
- Traditional
- Craftsman
- Country
Utilities & Systems
- Public Sewer
- Electric
- Heat Pump
- Electric
- Forced Air
- Heat Pump
- Public
Listing Agent Information
The information is being provided by Greater Greenville MLS. Information deemed reliable but not guaranteed. Information is provided for consumers' personal, non-commercial use, and may not be used for any purpose other than the identification of potential properties for purchase. Copyright 2025 Greater Greenville MLS. All Rights Reserved.
You Might Also Like...
Interested in selling in Evergreen Hills?


