


$983,804
239 Holly Branch Road LOT 20
Piedmont, SC 29673
About This Property
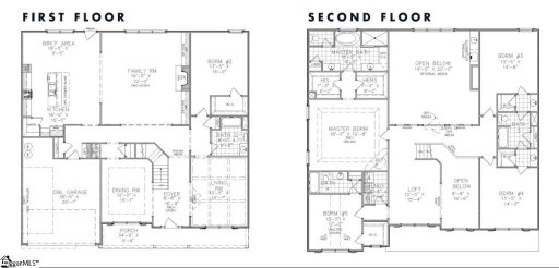
To be Buit per contract. Luxurious new home in the desirable NEW community, RIVER'S EDGE! The Riverview B features an unfinished basement with double exterior decks backing up to private woods!
Side entry garage completes this home. The chef's kitchen includes a SS Hood, Quartz Countertops, White Farm Sink, Tile Backsplash, 42" Cabinetry with Crown Molding and SS Built-In Appliances. 5" Hardwood Flooring through-out first floor main living areas, Family room includes Coffered Ceilings, Fireplace with Tile Surround and Fireplace Built-Ins.
GVL MLS # 1555583
Quick Facts
Time on Site
1 year ago
Property Type
Residential
Year Built
2025
Lot Size
25,264 sqft
Price/Sq.Ft.
$169
HOA Fees
$825/yr
Property Details
Schools
Features & Amenities
Features:
- 2 Story Foyer
- Bookcases
- High Ceilings
- Ceiling Fan(s)
- Ceiling Smooth
- Tray Ceiling(s)
- Granite Counters
- Open Floorplan
- Soaking Tub
- Walk-In Closet(s)
- Coffered Ceiling(s)
- Pantry
- Pot Filler Faucet
Location & Map
Map View
Loading map...
Additional Information
Basement
- Partially Finished
Community
- Gated
Lot & Land
- 1/2 - Acre
- Sprklr In Grnd-Partial Yd
Tax Information
Interior Details
- Carpet
- Ceramic Tile
- Wood
- Gas Cooktop
- Dishwasher
- Disposal
- Oven
- Microwave-Convection
- Gas Water Heater
- Tankless Water Heater
- 2nd Floor
- Walk-in
- Electric Dryer Hookup
- Laundry Room
- 2 Story Foyer
- Bookcases
- High Ceilings
- Ceiling Fan(s)
- Ceiling Smooth
- Tray Ceiling(s)
- Granite Counters
- Open Floorplan
- Soaking Tub
- Walk-In Closet(s)
- Coffered Ceiling(s)
- Pantry
- Pot Filler Faucet
- Ventless
Parking & Garage
- Attached
- Paved
- Side/Rear Entry
Exterior Features
- Architectural
- Attached
- Paved
- Side/Rear Entry
- Basement
- Patio
- Porch
- Hardboard Siding
- Stone
H O A & Association
Property Overview
- Two
- Traditional
Utilities & Systems
- Septic Tank
- Central Air
- Electric
- Multi Units
- Multi-Units
- Natural Gas
- Underground Utilities
- Cable Available
- Public
Listing Agent Information
The information is being provided by Greater Greenville MLS. Information deemed reliable but not guaranteed. Information is provided for consumers' personal, non-commercial use, and may not be used for any purpose other than the identification of potential properties for purchase. Copyright 2025 Greater Greenville MLS. All Rights Reserved.

