


$265,990
121 Zoey Way
Piedmont, SC 29673
About This Property
This Property Has Been Sold
This property sold 8 months ago and is no longer available for purchase.
View active listings in Saluda Crossing →Welcome to Saluda Crossing! New homes in Piedmont, SC. Discover a thoughtfully designed townhome community in just minutes from I-85 for easy access to Greenville, Anderson, Easley, Clemson and beyond.
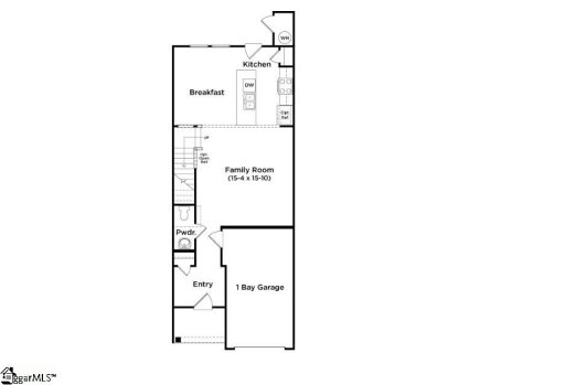
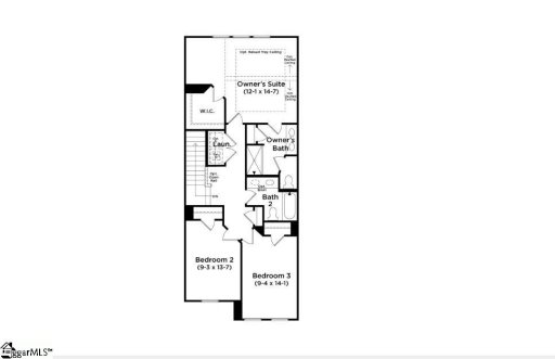
Zoned for the highly sought-after Wren High School, this charming neighborhood blends modern convenience with low-maintenance living. The Litchfield home design features a spacious primary suite, perfect for comfort and relaxation, 9-foot ceilings on the first floor, smart home connectivity, oversized kitchen island and generous windows allowing an abundance of natural light. With easy commuting, great schools, craftsman style architecture and low-maintenance living, Saluda Crossing is a premier community in a convenient location.
Welcome to the Litchfield! Featuring almost 1600 square feet of living space, this home boasts open concept living that wil fit any lifestyle. Entering into the foyer from your covered front porch and continuing down the hall, you come to the kitchen and living area that includes a 9 foot island with sink and white Quartz countertops, beautiful dark brown cabinetry, tiled backsplash, and stainless steel appliances including a gas range/oven and refrigerator!
GVL MLS # 1562446
Quick Facts
Time on Site
9 months ago
Property Type
Residential
Year Built
2025
Lot Size
1,742 sqft
Price/Sq.Ft.
$168
HOA Fees
$200/mo
Property Details
Schools
Features & Amenities
Features:
- High Ceilings
- Ceiling Smooth
- Open Floorplan
- Walk-In Closet(s)
- Split Floor Plan
- Countertops – Quartz
- Pantry
Location & Map
Map View
Loading map...
Additional Information
Community
- Street Lights
- Lawn Maintenance
Lot & Land
Tax Information
Interior Details
- Carpet
- Luxury Vinyl
- Dishwasher
- Disposal
- Dryer
- Free-Standing Gas Range
- Self Cleaning Oven
- Refrigerator
- Washer
- Gas Oven
- Microwave
- Electric Water Heater
- 2nd Floor
- Laundry Closet
- Electric Dryer Hookup
- High Ceilings
- Ceiling Smooth
- Open Floorplan
- Walk-In Closet(s)
- Split Floor Plan
- Countertops – Quartz
- Pantry
Parking & Garage
- Attached
- Paved
- Garage Door Opener
Exterior Features
- Architectural
- Attached
- Paved
- Garage Door Opener
- Slab
- Patio
- Front Porch
- Vinyl Siding
H O A & Association
- Maintenance Grounds
- Street Lights
- Trash
Property Overview
- Two
- Craftsman
Utilities & Systems
- Public Sewer
- Electric
- Natural Gas
- Cable Available
- Public
Listing Agent Information
The information is being provided by Greater Greenville MLS. Information deemed reliable but not guaranteed. Information is provided for consumers' personal, non-commercial use, and may not be used for any purpose other than the identification of potential properties for purchase. Copyright 2025 Greater Greenville MLS. All Rights Reserved.
You Might Also Like...
Interested in selling in Saluda Crossing?


