




$231,589
1619 Sundiata Street
Piedmont, SC 29673
About This Property
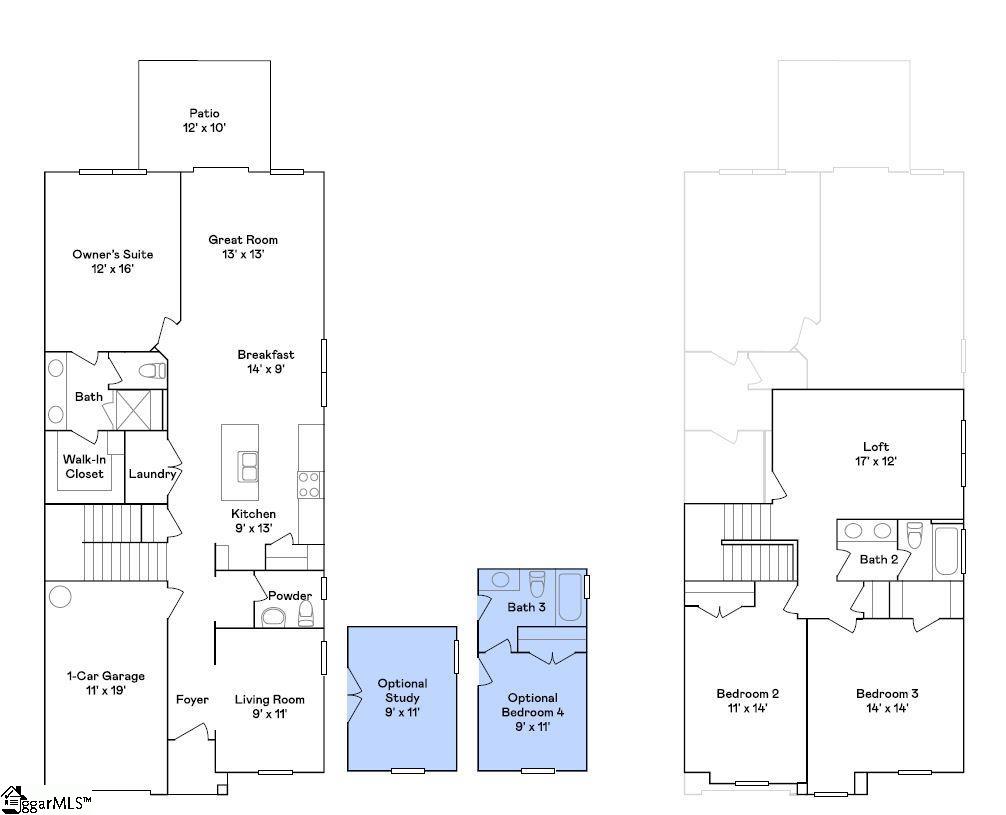
Our BERKLEY floorplan features the owners bedroom on the main floor, along with a versatile flex room in the front entry, a half bath for guests that visit, and a open concept kitchen with subway tile backsplash and stylish quartz or granite countertops. Upstairs will be an open loft, a full bath and 2 great sized secondary bedrooms.
GVL MLS # 1564430
Quick Facts
Time on Site
8 months ago
Property Type
Residential
Year Built
2025
Lot Size
2,339 sqft
Price/Sq.Ft.
$117
HOA Fees
$140/mo
Property Details
Schools
Features & Amenities
Features:
- High Ceilings
- Ceiling Smooth
- Tray Ceiling(s)
- Open Floorplan
- Walk-In Closet(s)
- Countertops – Quartz
- Pantry
Location & Map
Map View
Loading map...
Additional Information
Community
- Common Areas
- Sidewalks
- Lawn Maintenance
- Landscape Maintenance
Lot & Land
- 1/2 Acre or Less
Tax Information
Interior Details
- Carpet
- Vinyl
- Dishwasher
- Disposal
- Free-Standing Gas Range
- Other
- Electric Oven
- Microwave
- Microwave-Convection
- Electric Water Heater
- 1st Floor
- Electric Dryer Hookup
- High Ceilings
- Ceiling Smooth
- Tray Ceiling(s)
- Open Floorplan
- Walk-In Closet(s)
- Countertops – Quartz
- Pantry
Parking & Garage
- Attached
- Paved
- Garage Door Opener
Exterior Features
- Architectural
- Attached
- Paved
- Garage Door Opener
- Slab
- Patio
- Hardboard Siding
H O A & Association
- Common Area Ins.
- Maintenance Structure
- Insurance
- Maintenance Grounds
- Street Lights
- Termite Contract
- By-Laws
- Parking
Property Overview
- Two
- Traditional
Utilities & Systems
- Electric
- Damper Controlled
- Natural Gas
- Sewer Available
- Water Available
Listing Agent Information
The information is being provided by Greater Greenville MLS. Information deemed reliable but not guaranteed. Information is provided for consumers' personal, non-commercial use, and may not be used for any purpose other than the identification of potential properties for purchase. Copyright 2025 Greater Greenville MLS. All Rights Reserved.


