



$304,900
412 Shortleaf Lane
Pendleton, SC 29670
About This Property
This Property Has Been Sold
This property sold 5 months ago and is no longer available for purchase.
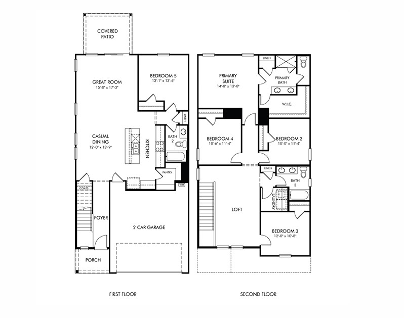
View active listings in Village at White Pine →Brand new, energy-efficient home available by Sep 2025! Host the next holiday gathering in the open-concept kitchen and living area. With five bedrooms, there's plenty of room to spread out.
Personalize the second-story loft to meet your needs. Dual sinks and a large closet complement the primary suite. Village at White Pine is located just off I-85 and Hwy 76 in Anderson County.
Explore shopping, restaurants, and entertainment in Anderson and Clemson. There is no shortage of activities for the outdoor lover. Spend the day hiking and boating at Lake Hartwell.
WUM MLS # 1136783687
Quick Facts
Time on Site
6 months ago
Property Type
Residential
Price/Sq.Ft.
$130
Property Details
Schools
Features & Amenities
Location & Map
Map View
Loading map...
Additional Information
Lot & Land
- OutsideCityLimits
- Subdivision
Community & H O A
- CommonAreas
- StreetLights
- CommonGroundsArea
- Playground
- Sidewalks
Tax Information
Parking & Garage
- Attached
- Garage
- Basement
Property Details
- Craftsman
- Other
- SeeRemarks
Exterior Features
- Architectural
- Shingle
Interior Features
- Carpet
- CeramicTile
- Vinyl
- Dishwasher
- Disposal
- GasOven
- GasRange
- Microwave
- Laundry
- Loft
- DualSinks
- Fireplace
- HighCeilings
- BathInPrimaryBedroom
- PullDownAtticStairs
- SmoothCeilings
- SolidSurfaceCounters
- SeparateShower
- UpperLevelPrimary
- WalkInClosets
- Loft
Systems & Utilities
- CentralAir
- Electric
- Central
- Electric
- FloorFurnace
Listing Agent Information
This information is deemed reliable, but not guaranteed. Neither, the Western Upstate Association of REALTORS®, Inc. or Western Upstate Multiple Listing Service of South Carolina Inc., nor the listing broker, nor their agents or subagents are responsible for the accuracy of the information. The buyer is responsible for verifying all information. This information is provided by the Western Upstate Association of REALTORS®, Inc. and Western Upstate Multiple Listing Service of South Carolina, Inc. for use by its members and is not intended for the use for any other purpose. Information is provided for consumers' personal, non-commercial use, and may not be used for any purpose other than the identification of potential properties for purchase. The data relating to real estate for sale on this Web site comes in part from the Broker Reciprocity Program of the Western Upstate Association of REALTORS®, Inc. and the Western Upstate Multiple Listing Service, Inc.
You Might Also Like...
Interested in selling in Village at White Pine?


