


$252,000
146 Cotesworth Street
Pendleton, SC 29670
About This Property
This Property Has Been Sold
This property sold 4 months ago and is no longer available for purchase.
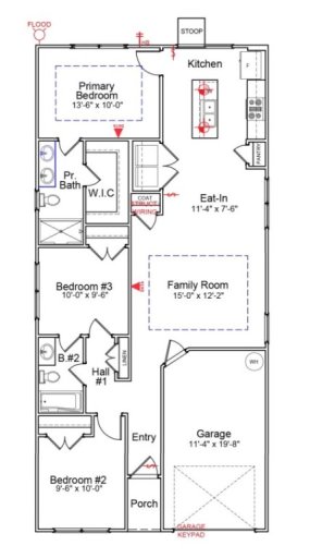
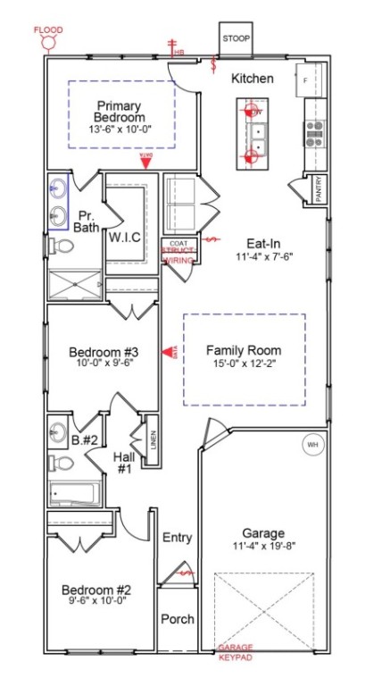
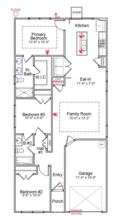
View active listings in Tucker Ridge →100% USDA Financing Eligible Area! The Baker floor plan is an inviting ranch-style home that offers three bedrooms, a cozy great room, and convenient eat in area, perfect for everyday living and entertaining. The majority of the home features luxury vinyl plank flooring, while the bedrooms are carpeted for a warm, relaxing feel.
The kitchen stands out with a spacious island and sleek single bowl sink, ideal for both meal prep and gathering.
WUM MLS # 1125612611
Quick Facts
Time on Site
9 months ago
Property Type
Residential
Year Built
2025
Price/Sq.Ft.
$219
Property Details
Schools
Features & Amenities
Location & Map
Map View
Loading map...
Additional Information
Lot & Land
- CityLot
- Level
- Subdivision
Community & H O A
- CommonAreas
- StreetLights
Tax Information
Parking & Garage
- Attached
- Garage
- Driveway
- GarageDoorOpener
Property Details
- RadonMitigationSystem
- SmokeDetectors
Exterior Features
- Architectural
- Shingle
- Stone
- VinylSiding
- SprinklerIrrigation
- Patio
Interior Features
- Carpet
- LuxuryVinylPlank
- Dishwasher
- Disposal
- GasOven
- GasRange
- GasWaterHeater
- Microwave
- TanklessWaterHeater
- PlumbedForIceMaker
- DualSinks
- HighCeilings
- BathInPrimaryBedroom
- MainLevelPrimary
- PullDownAtticStairs
- QuartzCounters
- SmoothCeilings
- ShowerOnly
- CableTv
- WalkInClosets
- WalkInShower
Systems & Utilities
- CentralAir
- Electric
Listing Agent Information
This information is deemed reliable, but not guaranteed. Neither, the Western Upstate Association of REALTORS®, Inc. or Western Upstate Multiple Listing Service of South Carolina Inc., nor the listing broker, nor their agents or subagents are responsible for the accuracy of the information. The buyer is responsible for verifying all information. This information is provided by the Western Upstate Association of REALTORS®, Inc. and Western Upstate Multiple Listing Service of South Carolina, Inc. for use by its members and is not intended for the use for any other purpose. Information is provided for consumers' personal, non-commercial use, and may not be used for any purpose other than the identification of potential properties for purchase. The data relating to real estate for sale on this Web site comes in part from the Broker Reciprocity Program of the Western Upstate Association of REALTORS®, Inc. and the Western Upstate Multiple Listing Service, Inc.
You Might Also Like...
Interested in selling in Tucker Ridge?

