



$264,000
New Pendleton Home: Primary Down, Bonus Room & Covered Porch!
Pendleton, SC 29670
About This Property
This Property Has Been Sold
This property sold 3 months ago and is no longer available for purchase.
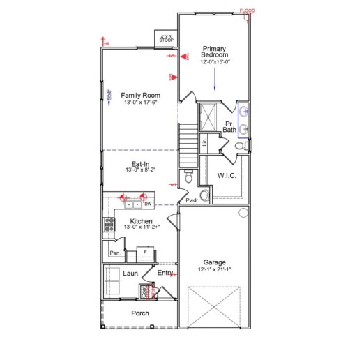
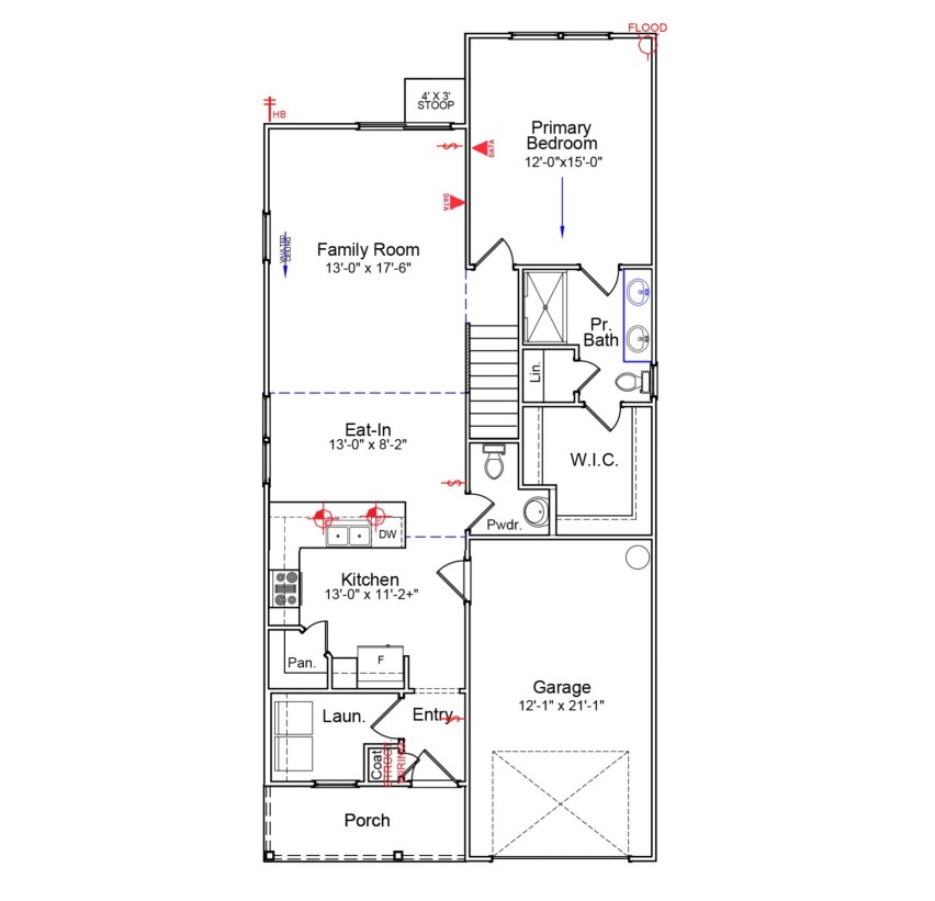
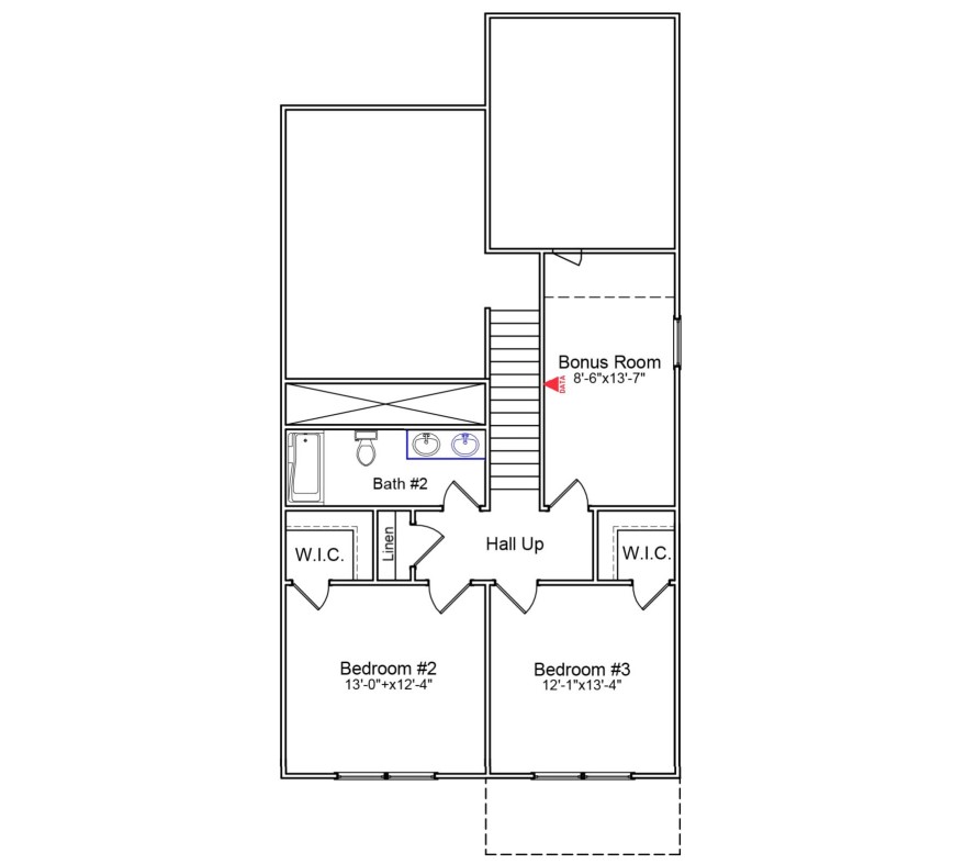
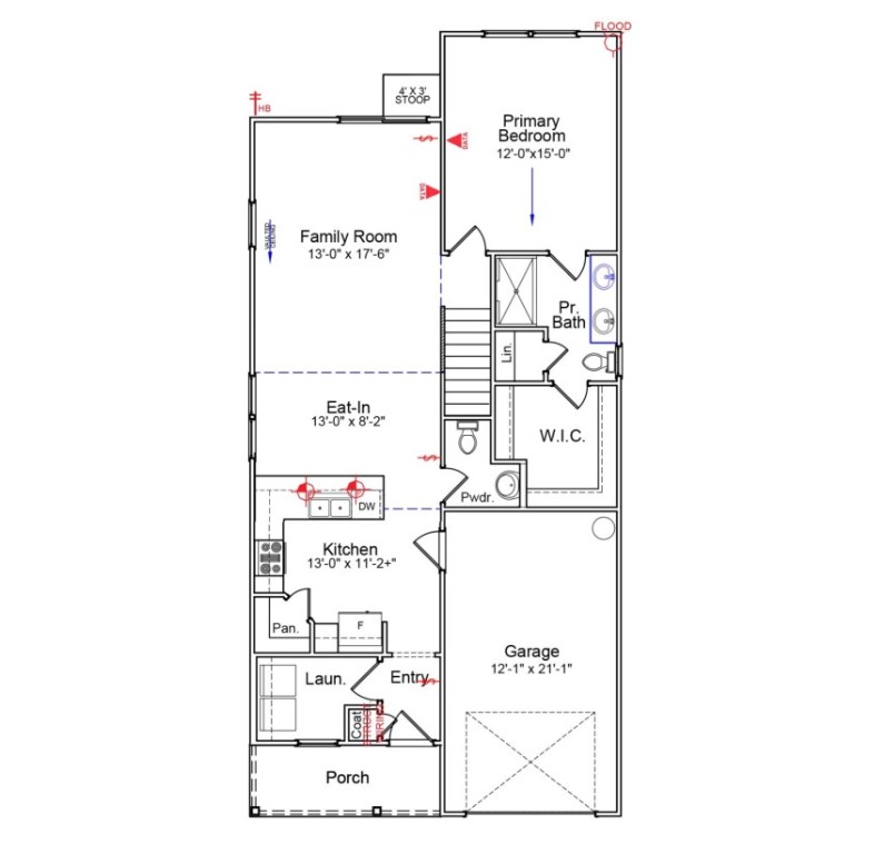
View active listings in Tucker Ridge →The Evans Floor Plan is a charming two-story home that offers both comfort and functionality, featuring three bedrooms and a one-car garage. Enjoy a welcoming covered porch and an outdoor shed for added convenience! The primary bedroom, located on the main floor, includes a vaulted ceiling, a spacious walk-in closet, and dual sink bowls in the en suite bath.
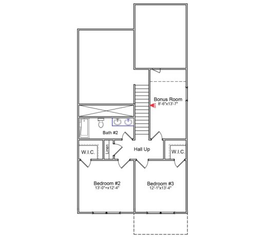
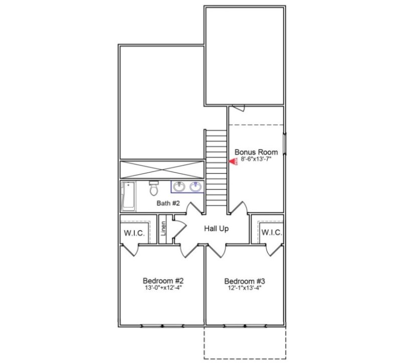
The kitchen is accented by sleek quartz countertops, while luxury vinyl plank flooring extends through most of the downstairs, adding a modern and durable touch. Upstairs, you'll find two additional bedrooms - each with its own walk-in closet - along with a versatile bonus room that's perfect for a playroom, entertainment area, or home office.
WUM MLS # 1114278739
Quick Facts
Time on Site
11 months ago
Property Type
Residential
Year Built
2025
Price/Sq.Ft.
$154
Property Details
Schools
Features & Amenities
Location & Map
Map View
Loading map...
Additional Information
Lot & Land
- CityLot
- Level
- Subdivision
Community & H O A
- CommonAreas
- StreetLights
Tax Information
Parking & Garage
- Attached
- Garage
- Driveway
- GarageDoorOpener
Property Details
- RadonMitigationSystem
- SmokeDetectors
Exterior Features
- Architectural
- Shingle
- Stone
- VinylSiding
- SprinklerIrrigation
- Patio
Interior Features
- Carpet
- LuxuryVinylPlank
- Dishwasher
- ElectricOven
- ElectricRange
- Disposal
- GasWaterHeater
- Microwave
- TanklessWaterHeater
- PlumbedForIceMaker
- DualSinks
- HighCeilings
- BathInPrimaryBedroom
- MainLevelPrimary
- PullDownAtticStairs
- QuartzCounters
- SmoothCeilings
- ShowerOnly
- CableTv
- WalkInClosets
- WalkInShower
- Loft
Systems & Utilities
- CentralAir
- Electric
- Central
- Gas
- NaturalGas
Listing Agent Information
This information is deemed reliable, but not guaranteed. Neither, the Western Upstate Association of REALTORS®, Inc. or Western Upstate Multiple Listing Service of South Carolina Inc., nor the listing broker, nor their agents or subagents are responsible for the accuracy of the information. The buyer is responsible for verifying all information. This information is provided by the Western Upstate Association of REALTORS®, Inc. and Western Upstate Multiple Listing Service of South Carolina, Inc. for use by its members and is not intended for the use for any other purpose. Information is provided for consumers' personal, non-commercial use, and may not be used for any purpose other than the identification of potential properties for purchase. The data relating to real estate for sale on this Web site comes in part from the Broker Reciprocity Program of the Western Upstate Association of REALTORS®, Inc. and the Western Upstate Multiple Listing Service, Inc.
You Might Also Like...
Interested in selling in Tucker Ridge?


