




$242,500
138 Tahoe Drive
Orangeburg, SC 29118
About This Property
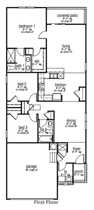
Welcome to the Allex ranch plan in Mulberry Landing at 138 Tahoe Drive! The Allex floorplan welcomes you in with plenty of natural light throughout and rooms that seamlessly flow together. The dining area is at the front of the home along with a hallway leading to 2 of the bedrooms and a shared bathroom.
Moving from the dining area to the open kitchen, you will find impressive granite countertops (although quartz are pictured) and gray shaker-style cabinetry. There is a kitchen bar for added counter space that overlooks the living area. The living area is spacious and open with access to the covered back patio and primary bedroom.
The primary bedroom is privately tucked into the back of the house, featuring an en-suite primary bathroom and spacious walk-in closet.
Quick Facts
Time on Site
2 months ago
Property Type
Residential
Year Built
2026
Lot Size
7,840 sqft
Property Details
Schools
Features & Amenities
Location & Map
Map View
Loading map...
Additional Information
Lot And Land
Agent Contacts
Property Details
Exterior Features
Interior Features
Systems & Utilities
Financial Information
Additional Information
- IDX
- -80.903819
- 33.525058
- Slab


