




$280,000
101 Allen Hill Way
Olin, NC 28660
About This Property
Imagine waking up in a brand new home where natural light pours in and the day begins with a sense of calm and clarity. Set on nearly half an acre in Olin, this new construction offers space to breathe, thoughtful design, and a lifestyle that feels both grounded and intentional. This listing also qualifies for USDA financing.
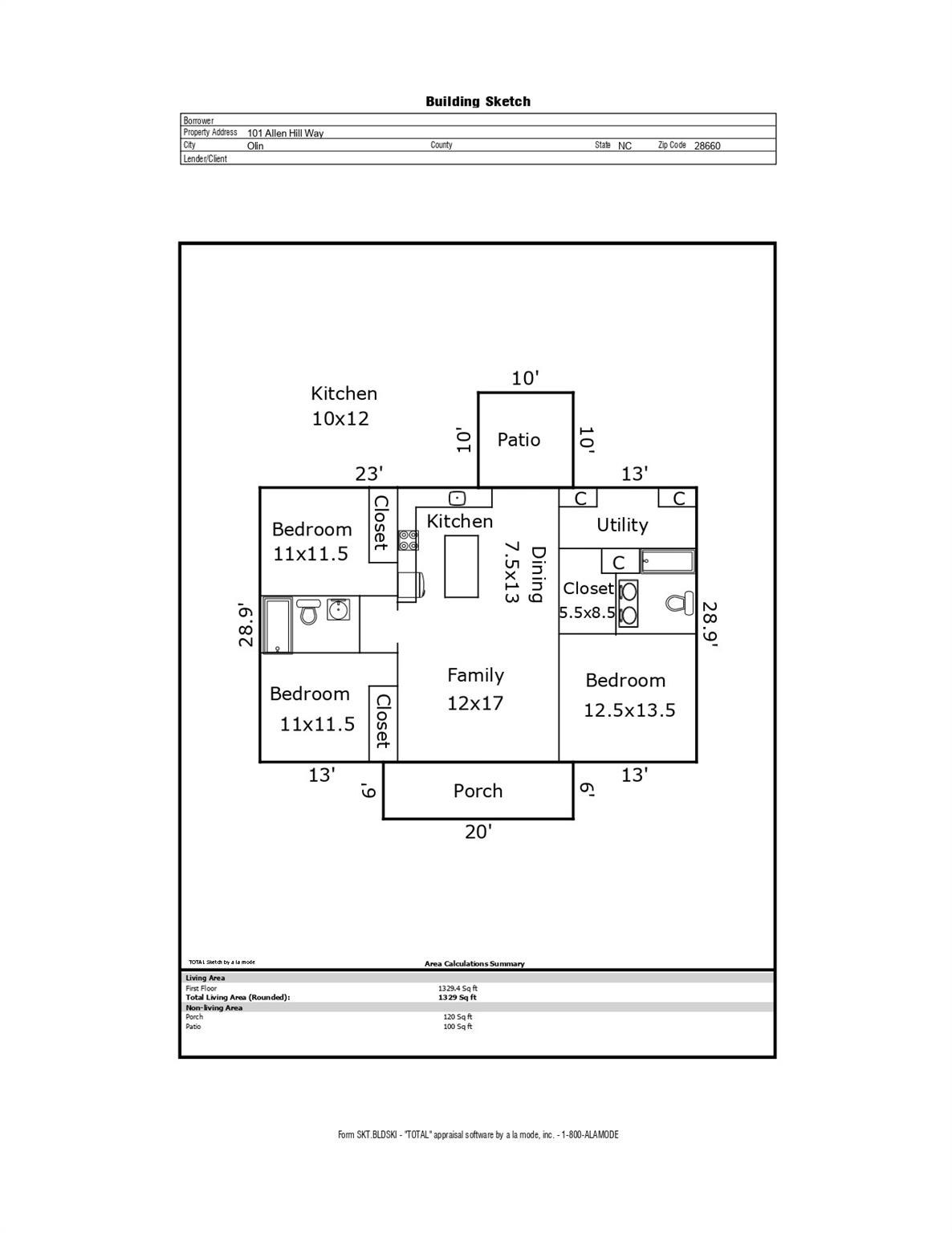
The home features 3 bedrooms and 2 full bathrooms with an amazing floor plan that flows effortlessly from room to room. Each space feels purposeful and well proportioned, creating a comfortable rhythm for daily living. Large windows invite sunlight throughout the home, enhancing the warmth and openness of every room.
Plenty of storage is thoughtfully built into the design, allowing everything to have its place while keeping living areas open and uncluttered. The result is a home that feels organized, functional, and easy to live in from day one.
CAR MLS # 292777717
Quick Facts
Time on Site
2 months ago
Property Type
Residential
Year Built
2025
Price/Sq.Ft.
$211
Property Details
Schools
Features & Amenities
Location & Map
Map View
Loading map...
Additional Information
Utilities
- Septic Installed
- County Water
Lot And Land
Agent Contacts
- Palmetto Park Realty Team Fort Mill: 803.548.6123
Interior Details
- Central
- Laundry Room
Exterior Features
- Vinyl
Parking And Garage
- Driveway
Financial Information
Basement And Foundation
- Slab
Zoning And Restrictions
Square Footage And Levels
- One
Additional C A R Information
IDX information is provided exclusively for consumers' personal, non-commercial use only; it may not be used for any purpose other than to identify prospective properties consumers may be interested in purchasing. Data is deemed reliable but is not guaranteed accurate by the MLS GRID. Use of this site may be subject to an end user license agreement. Based on information submitted to the MLS GRID as of Mon, Mar 16, 2026. All data is obtained from various sources and may not have been verified by broker or MLS GRID. Supplied Open House Information is subject to change without notice. All information should be independently reviewed and verified for accuracy. Properties may or may not be listed by the office/agent presenting the information. Some IDX listings have been excluded from this website. Any use by you of search facilities of data on the site, other than by a consumer looking to purchase real estate, is prohibited. DMCA Notice: Palmetto Park Realty respects the intellectual property rights of others. If you believe that your work has been copied in a way that constitutes copyright infringement, please provide our designated agent with written notice containing the following information: (1) identification of the copyrighted work claimed to have been infringed; (2) identification of the material that is claimed to be infringing; (3) your contact information; (4) a statement that you have a good faith belief that use of the material is not authorized; and (5) a statement that the information in the notification is accurate and you are authorized to act on behalf of the copyright owner. Please send DMCA notices to: [email protected]