




Indigo Place
1/12
$459k
Indigo Place
$459k
$459,000
8613 Connor Court
3Beds
2Baths
2025Built
About This Property
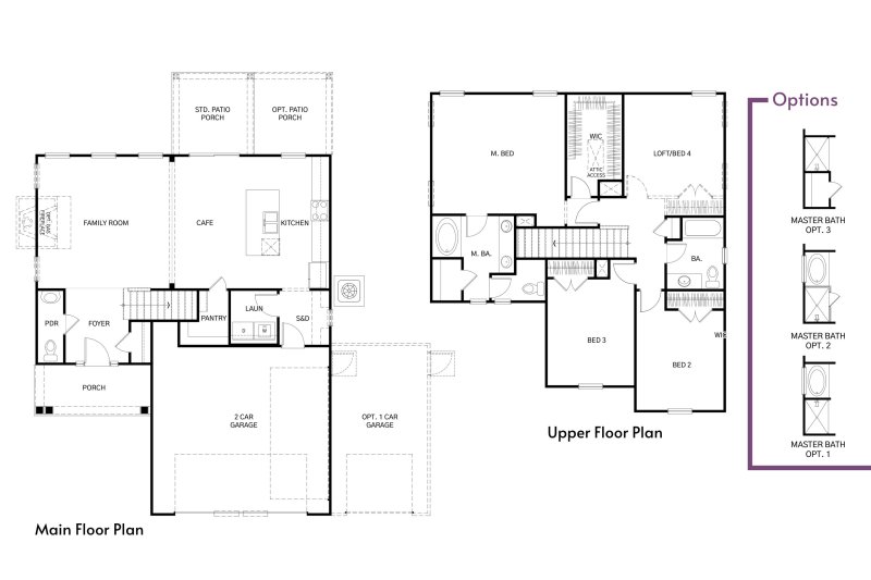
MOVE IN JANUARY 2026!! The Ellis! This two-story design features 3 bedrooms, 2.
5 baths plus a loft. On the main floor, the open-concept living area connects the family room, cafe, and kitchen for effortless everyday living and entertaining. The spacious kitchen includes a large island and direct access to the pantry and laundry area for added convenience.
Covered patio, quartz countertops, laminate flooring throughout 1st floor. Upstairs, the primary suite includes a large walk-in closet, double sinks, separate shower and tub. Two additional bedrooms share a full bath.
Quick Facts
Time on Site
2 months ago
Property Type
Residential
Year Built
2025
Lot Size
6,534 sqft
Property Details
Bedrooms:
3
Bathrooms:
2
Total Area:
2,000 SqFt
Sub-Type:
SingleFamilyResidence
Stories:
2
Schools
Elementary:
A. C. Corcoran
Middle:
Deer Park
High:
Stall
School assignments may change. Contact the school district to confirm.
Features & Amenities
Location & Map
Map View
Loading map...
Additional Information
Lot And Land
Lot Features
0 - .5 Acre
Lot Size Area
0.15
Lot Size Acres
0.15
Lot Size Units
Acres
Agent Contacts
List Agent Mls Id
29587
List Office Name
HQ Real Estate LLC
List Office Mls Id
9372
List Agent Full Name
Brenda Kennedy
Green Features
Green Building Verification Type
HERS Index Score
Room Dimensions
Bathrooms Half
1
Room Master Bedroom Level
Upper
Property Details
Directions
Heading North Bound On Hwy 52- Rivers Ave, From The Northwoods Mall, Turn Left On Otranto Rd. We Are 1.4 Miles On The Left, Just Before Salamander Rd.
M L S Area Major
32 - N.Charleston, Summerville, Ladson, Outside I-526
Tax Map Number
4850100155
County Or Parish
Charleston
Property Sub Type
Single Family Detached
Architectural Style
Traditional
Construction Materials
Vinyl Siding
Exterior Features
Roof
Architectural
Fencing
Rear Only
Other Structures
No
Parking Features
2 Car Garage
Exterior Features
Rain Gutters
Patio And Porch Features
Patio, Covered
Interior Features
Cooling
Central Air
Heating
Heat Pump
Flooring
Carpet, Ceramic Tile, Laminate
Room Type
Laundry, Living/Dining Combo
Laundry Features
Washer Hookup, Laundry Room
Interior Features
High Ceilings, Living/Dining Combo
Systems & Utilities
Sewer
Public Sewer
Water Source
Public
Financial Information
Listing Terms
Cash, Conventional, FHA, VA Loan
Additional Information
Stories
2
Garage Y N
true
Carport Y N
false
Cooling Y N
true
Feed Types
- IDX
Heating Y N
true
Listing Id
25031431
Mls Status
Active
Listing Key
5a63334a2f87ff5da6a5074299a3b87f
Coordinates
- -80.065873
- 32.960473
Fireplace Y N
true
Parking Total
2
Carport Spaces
0
Covered Spaces
2
Home Warranty Y N
true
Standard Status
Active
Source System Key
20251129165551133687000000
Building Area Units
Square Feet
Foundation Details
- Slab
New Construction Y N
true
Property Attached Y N
false
Originating System Name
CHS Regional MLS
Special Listing Conditions
10 Yr Warranty
Showing & Documentation
Internet Address Display Y N
true
Internet Consumer Comment Y N
true
Internet Automated Valuation Display Y N
true
