


$660,000
112 Commonwealth Drive
Ninety Six, SC 29666
About This Property
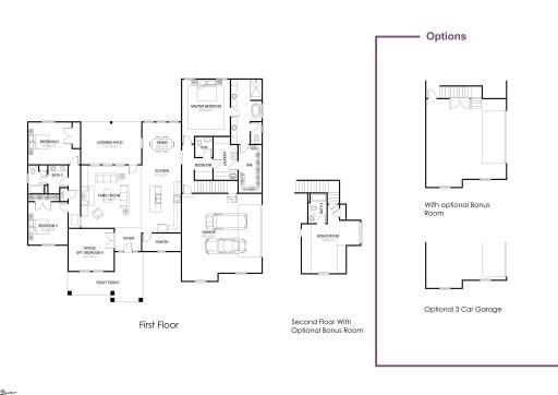
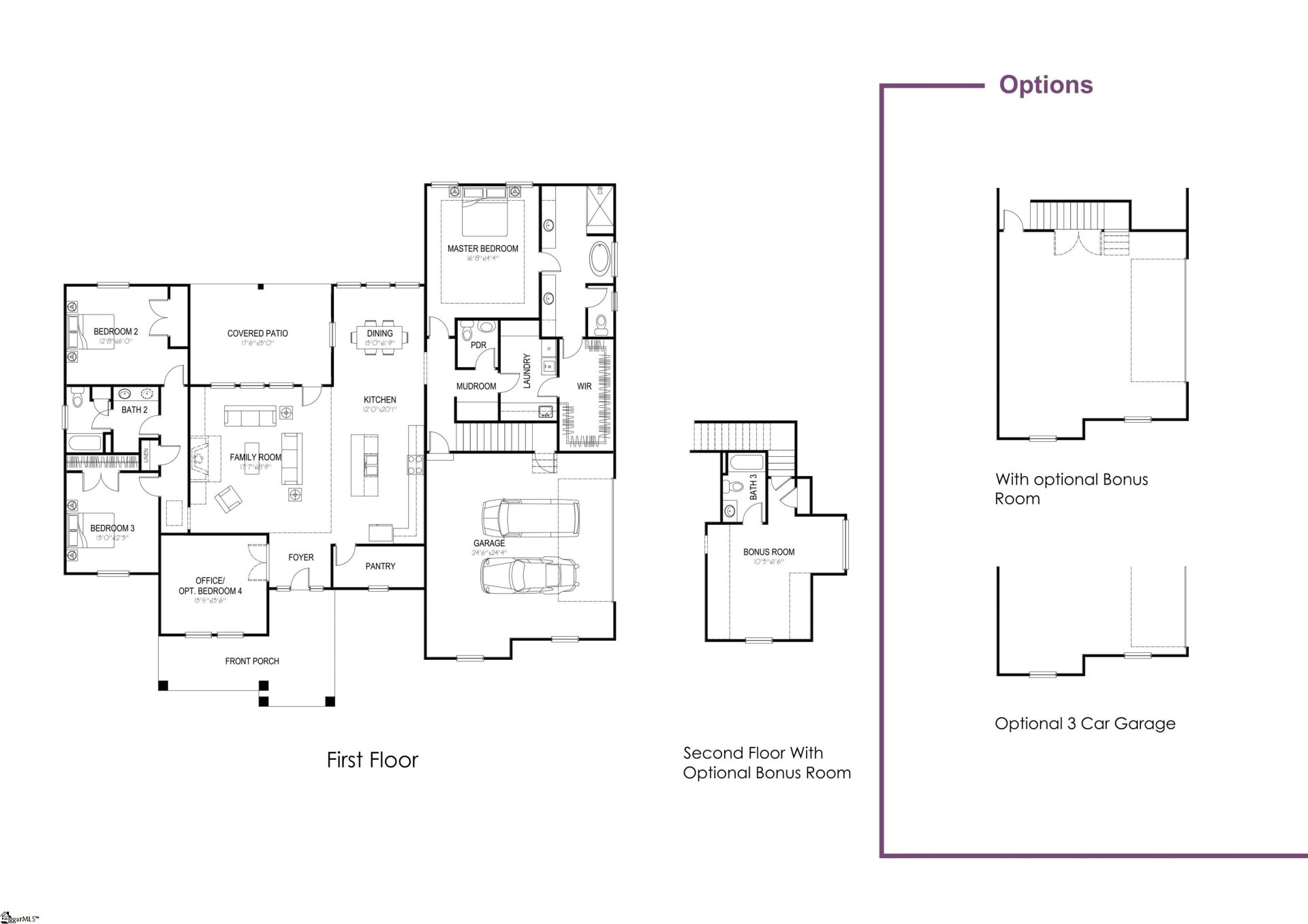
Live your best life on Lake Greenwood in a gated community with all the amenities! This Craftsman-style Claire floor plan by Hunter Quinn Homes located in The Plantation offers open-concept living with 4 bedrooms and 3.5 bathrooms.
The luxurious primary suite features a walk-in shower, separate stand-alone tub, and a spacious walk-in closet. Additional highlights include an office, gas log fireplace, screened in porch and quartz countertops throughout the kitchen and baths. Built for performance and durability, the home features a Techshield roof OSB to help lower energy costs, ZIP Panel System for superior moisture and air protection, AdvanTech subflooring, and Truss Construction for added strength.
Modern conveniences include a smart zoned thermostat, CAT 6 wiring for high-speed internet, Qolsys IQ Panel security system, SkyBell doorbell camera, Z-Wave Bluetooth keyless entry, and low-maintenance South Carolina native landscaping. The Plantation at Grand Harbor is a gated lake community offering a Social Membership that includes access to the clubhouse, dining, fitness center, tennis facilities, lakeside pool, and private marina. Residents may also upgrade to Full Golf Membership, providing access to the Championship Davis Love III-designed golf course and practice facilities.
GVL MLS # 1573863
Quick Facts
Time on Site
6 months ago
Property Type
Residential
Lot Size
2.00 acres
Price/Sq.Ft.
$215
HOA Fees
$1,200/yr
Property Details
Schools
Features & Amenities
Features:
- High Ceilings
- Ceiling Fan(s)
- Vaulted Ceiling(s)
- Ceiling Smooth
- Tray Ceiling(s)
- Open Floorplan
- Walk-In Closet(s)
- Countertops – Quartz
- Pantry
Location & Map
Map View
Loading map...
Additional Information
Community
- Clubhouse
- Common Areas
- Fitness Center
- Gated
- Golf
- Street Lights
- Recreational Path
- Playground
- Pool
- Tennis Court(s)
- Water Access
- Boat Ramp
- Neighborhood Lake/Pond
Lot & Land
- 2 - 5 Acres
- Wooded
- Interior Lot
Tax Information
Interior Details
- Carpet
- Ceramic Tile
- Laminate
- Dishwasher
- Disposal
- Free-Standing Gas Range
- Oven
- Gas Oven
- Microwave
- Range Hood
- Tankless Water Heater
- 1st Floor
- Electric Dryer Hookup
- Washer Hookup
- Laundry Room
- High Ceilings
- Ceiling Fan(s)
- Vaulted Ceiling(s)
- Ceiling Smooth
- Tray Ceiling(s)
- Open Floorplan
- Walk-In Closet(s)
- Countertops – Quartz
- Pantry
- Gas Log
Parking & Garage
- Attached
- Concrete
- Garage Door Opener
- Side/Rear Entry
- Driveway
Exterior Features
- Architectural
- Attached
- Concrete
- Garage Door Opener
- Side/Rear Entry
- Driveway
- Crawl Space
- Screened
- Front Porch
- Rear Porch
- Hardboard Siding
- Stone
H O A & Association
- Pool
- Recreation Facilities
- Street Lights
- By-Laws
- Restrictive Covenants
Property Overview
- One and One Half
- Craftsman
Utilities & Systems
- Public Sewer
- Electric
- Natural Gas
- Public
Listing Agent Information
The information is being provided by Greater Greenville MLS. Information deemed reliable but not guaranteed. Information is provided for consumers' personal, non-commercial use, and may not be used for any purpose other than the identification of potential properties for purchase. Copyright 2025 Greater Greenville MLS. All Rights Reserved.


