


$785,000
106 Polo Court
Ninety Six, SC 29666
About This Property
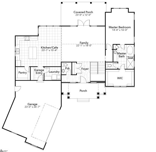
Live the lake life in this NEW Craftsman home in The Plantation at Grand Harbor! Featuring 4 bedrooms, 3.5 baths, a luxurious main-level primary suite, open-concept living, and a screened-in back porch.
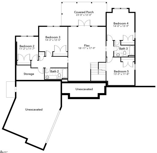
Enjoy a walk-out basement with a spacious flex living area and wet bar, plus a covered patio. The home also includes a drop zone, office/gym flex room, quartz countertops, gas log fireplace, and high-quality construction features like Techshield roof OSB, ZIP Panel System, and AdvanTech subflooring. Smart-home upgrades include zoned thermostat, CAT 6 wiring, Qolsys security system, SkyBell camera, and Z-Wave keyless entry.
Located in a gated lake community with clubhouse, dining, fitness center, tennis, lakeside pool, and private marina. Optional golf and equestrian amenities available. Builder/Seller will pay for a boat slip for the first two years!
GVL MLS # 1583630
Quick Facts
Time on Site
2 months ago
Property Type
Residential
Year Built
2026
Lot Size
22,215 sqft
Price/Sq.Ft.
$237
HOA Fees
$1,200/yr
Property Details
Schools
Features & Amenities
Features:
- High Ceilings
- Ceiling Fan(s)
- Vaulted Ceiling(s)
- Ceiling Smooth
- Tray Ceiling(s)
- Open Floorplan
- Walk-In Closet(s)
- Wet Bar
- Countertops – Quartz
- Pantry
Location & Map
Map View
Loading map...
Additional Information
Basement
- Finished
- Walk-Out Access
- Interior Entry
Community
- Clubhouse
- Common Areas
- Gated
- Golf
- Pool
- Tennis Court(s)
- Water Access
- Boat Ramp
- Walking Trails
Lot & Land
- 1/2 - Acre
Tax Information
Interior Details
- Ceramic Tile
- Laminate
- Gas Cooktop
- Dishwasher
- Disposal
- Free-Standing Gas Range
- Oven
- Electric Oven
- Microwave
- Range Hood
- Tankless Water Heater
- Sink
- 1st Floor
- Electric Dryer Hookup
- Washer Hookup
- High Ceilings
- Ceiling Fan(s)
- Vaulted Ceiling(s)
- Ceiling Smooth
- Tray Ceiling(s)
- Open Floorplan
- Walk-In Closet(s)
- Wet Bar
- Countertops – Quartz
- Pantry
- Gas Log
Parking & Garage
- Attached
- Concrete
- Garage Door Opener
- Driveway
Exterior Features
- Architectural
- Attached
- Concrete
- Garage Door Opener
- Driveway
- Basement
- Screened
- Deck
- Patio
- Front Porch
- Porch
- Rear Porch
- Hardboard Siding
- Stone
H O A & Association
- Electricity
- Street Lights
- By-Laws
- Restrictive Covenants
Property Overview
- 1+Basement
- Craftsman
Utilities & Systems
- Public Sewer
- Electric
- Natural Gas
- Public
Listing Agent Information
The information is being provided by Greater Greenville MLS. Information deemed reliable but not guaranteed. Information is provided for consumers' personal, non-commercial use, and may not be used for any purpose other than the identification of potential properties for purchase. Copyright 2025 Greater Greenville MLS. All Rights Reserved.

