




$1,690,000
1340 Langford Road
Mount Pleasant, SC 29464
About This Property
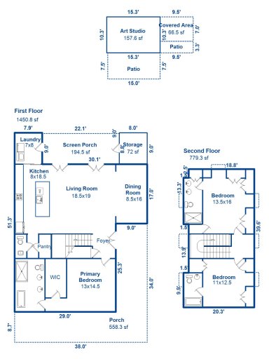
Welcome to 1340 Langford Drive, a stunning custom home with 3 bedrooms and 3.5 bathrooms in desirable Shellpoint of south Mount Pleasant--just three miles from Sullivan's Island, two miles from Old Village, and five miles from downtown Charleston. Built by John Frick of Level Builders and designed by architect Julie O'Connor of American Vernacular, this home has over 2,230 square feet of thoughtful living space plus a picturesque detached artist's cottage adding an additional 158 square feet.
Designed with bespoke in mind, highlights include 100-year-old reclaimed hardwood flooring, a hip metal roof, stunning high ceilings, and custom millwork throughout. A welcoming wrap around porch makes way to the foyer and open floor plan that is flooded with natural light. The great room opens to a serene screened back porch through two sets of French doors for true indoor-outdoor living.
The open dining room with a vaulted ceiling, surrounded by windows and clad with shiplap, showcases the attention to detail and custom finishes found throughout the home. A large center island allows for additional seating in the stunning kitchen that features another vaulted ceiling, a farmhouse sink, custom hood vent, a separate pantry, and recent updates including a new marble tile backsplash. The adjacent laundry room has additional counter and cabinet space, and a separate entrance from the back porch to also serve as a convenient drop zone.
Quick Facts
Time on Site
16 days ago
Property Type
Residential
Year Built
2014
Lot Size
11,325 sqft
Property Details
Schools
Features & Amenities
Location & Map
Map View
Loading map...
Additional Information
Lot And Land
Agent Contacts
Community & H O A
Room Dimensions
Property Details
Exterior Features
Interior Features
Systems & Utilities
Financial Information
Additional Information
- IDX
- -79.841947
- 32.805992
- Crawl Space


