




$3,250,000
0 Darrell Creek Trail
About This Property
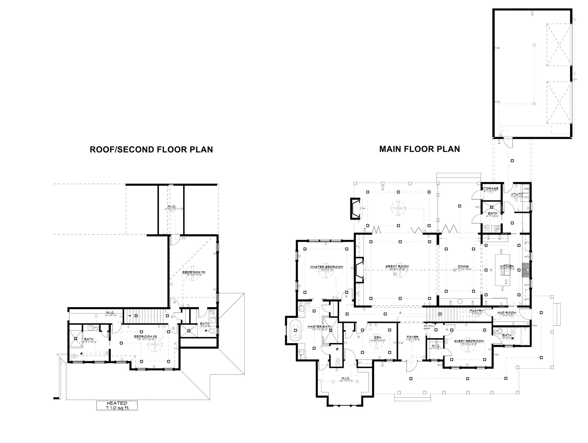
The epitome of luxury set on 10 secluded acres in Carolina Park within walking distance to schools, shopping, Costco, and Roper Hospital. This luxurious contemporary is surrounded by the privacy of pristine wetlands and woods. This 5 BR home features a metal roof, in ground pool, wide plank hardwood floors, a large great room, boutique lighting, and high end appliances.
The residence is part of Carolina Park, however it is neither subject to HOA dues, Covenants and Restrictions, nor has access to the residential amenities. This home is ideal for the discerning buyer who favors privacy and the flexibility to develop the property without interference from an HOA. An ADU may also be constructed on the property.
A survey, plat, and other documents are available for review.This is a once in a lifetime opportunity to build a secluded family compound in the middle of North Mt. Pleasant's most exclusive neighborhood.
Quick Facts
Time on Site
17 days ago
Property Type
Residential
Year Built
2026
Lot Size
9.90 acres
Property Details
Schools
Features & Amenities
Location & Map
Map View
Loading map...
Additional Information
Lot And Land
Agent Contacts
Room Dimensions
Property Details
Exterior Features
Interior Features
Systems & Utilities
Financial Information
Additional Information
- IDX
- -79.75802
- 32.891655
- Crawl Space


