




$500,000
210 Horse Shoe Lane
Morganton, NC 28655
About This Property
This Property Has Been Sold
This property sold 4 years ago and is no longer available for purchase.
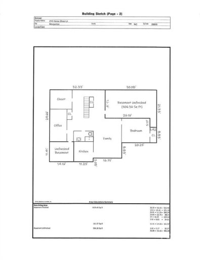
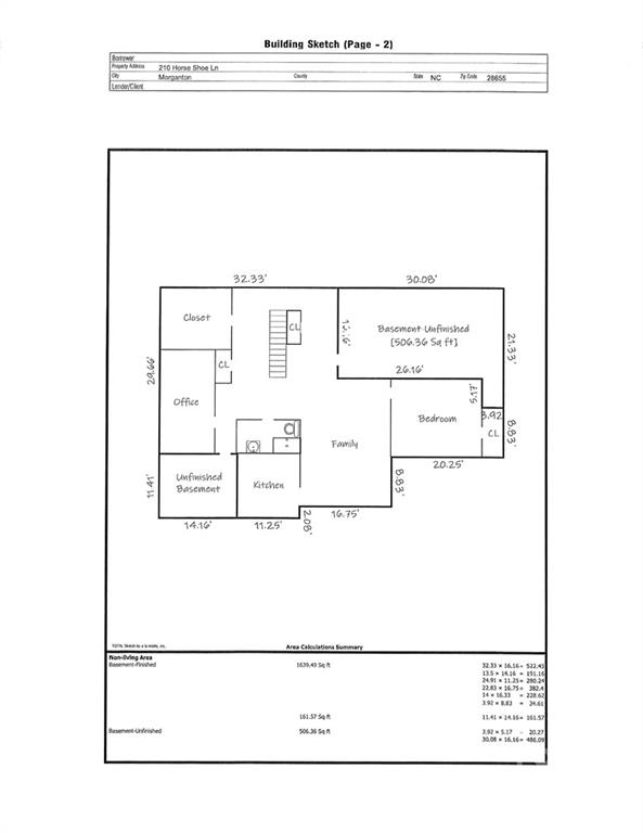
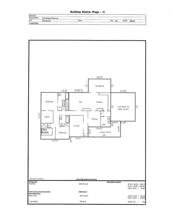
View active listings in Country Retreat →Room for everyone in this Beautiful Home located In the Country Retreat neighborhood of Morganton. Covered Front Porch takes you into Main Level with Living Room, Dining Room, Kitchen with Island/Bar Seating/ Breakfast Dining/ Built In Desk/ Gas Cooktop/Wall Ovens/ Pantry, Den w/Fireplace, Sunroom, Primary with Large Walk In Closet and En Suite Bathroom, Flex Room, Additional Bedroom and Full Bathroom, Main Level Laundry Room w/Half Bath, Garage. Enter the Lower Level/ Basement used as in-law suite with Interior & Exterior Access, Bedroom, Family Room, Kitchenette, Full Bathroom, Office, Storage Room, Patio, Garage Area and More Storage!!
Private Backyard w/ Fencing. Wood burning stove, Termite Bait System, Security System, New Roof. Located on Cul- de-Sac Road.
Minutes to shopping, restaurants, and schools. Short drive to Lake James.
CAR MLS # 76039083
Quick Facts
Time on Site
4 years ago
Property Type
Residential
Year Built
1990
Lot Size
28,749 sqft
Price/Sq.Ft.
$119
Property Details
Schools
Features & Amenities
Features:
- Built-in Features
- Pantry
Location & Map
Map View
Loading map...
Additional Information
Utilities
- Septic Installed
- City
Lot And Land
- Fenced
- Cul-De-Sac
- Sloped
Agent Contacts
- Palmetto Park Realty Team Fort Mill: 803.548.6123
Interior Details
- Central
- Heat Pump
- Propane
- Carpet
- Tile
- Wood
- Invisible fence
- Light fixture in D R
- T V Brackets
- Laundry Room
- Main Level
- Built-in Features
- Pantry
- Great Room
- Wood Burning
Exterior Features
- Brick Partial
- Vinyl
- Covered
- Front Porch
Parking And Garage
- Driveway
- Attached Garage
Financial Information
Dwelling And Structure
- Ranch
Basement And Foundation
- Basement
- Exterior Entry
- Interior Entry
- Partially Finished
Zoning And Restrictions
Square Footage And Levels
- One
Additional C A R Information
IDX information is provided exclusively for consumers' personal, non-commercial use only; it may not be used for any purpose other than to identify prospective properties consumers may be interested in purchasing. Data is deemed reliable but is not guaranteed accurate by the MLS GRID. Use of this site may be subject to an end user license agreement. Based on information submitted to the MLS GRID as of Tue, Aug 16, 2022. All data is obtained from various sources and may not have been verified by broker or MLS GRID. Supplied Open House Information is subject to change without notice. All information should be independently reviewed and verified for accuracy. Properties may or may not be listed by the office/agent presenting the information. Some IDX listings have been excluded from this website. Any use by you of search facilities of data on the site, other than by a consumer looking to purchase real estate, is prohibited. DMCA Notice: Palmetto Park Realty respects the intellectual property rights of others. If you believe that your work has been copied in a way that constitutes copyright infringement, please provide our designated agent with written notice containing the following information: (1) identification of the copyrighted work claimed to have been infringed; (2) identification of the material that is claimed to be infringing; (3) your contact information; (4) a statement that you have a good faith belief that use of the material is not authorized; and (5) a statement that the information in the notification is accurate and you are authorized to act on behalf of the copyright owner. Please send DMCA notices to: [email protected]
You Might Also Like...
Interested in selling in Country Retreat?